Forest Hill College

Forest Hill College No. 8724
Location
178–180 Mahoneys Road

,
3131

Coordinates37°50′55″S 145°09′43″E / 37.8485°S 145.1620°E / -37.8485; 145.1620
Information
Former nameBurwood Heights (1969–1990)
TypePublic
MottoConnect, Explore, Aspire
Established1990
PrincipalDavid Rogers (2007–)
Teaching staffAbout 100
Years offered7–12
GenderCo-educational
Enrolment602 (2019)
750 (2006)
504 (1974)
Colour(s)Navy blue, green, white
     
Websitewww.fhc.vic.edu.au

Forest Hill College is a co-educational state secondary college in Burwood East, Victoria, Australia. It was originally established in 1970 as Burwood Heights Secondary College, later re-opening as Forest Hill College in 1990.

History

Background

The 1954 Melbourne & Metropolitan Planning Scheme rezoned a large section of land in the then-rural locality of East Burwood, paving the way for residential development. During the post-war housing boom, thousands of new residents—many of them European migrants—settled in the area.[1] In response to the population surge, the State Government acquired part of a former orchard off Burwood Road to establish public education facilities. Burwood Heights Primary School opened in 1965, followed by Burwood Heights High School in 1969.[2]

The name “Burwood Heights” is believed to have been adopted from the adjacent housing estate, which was developed in the early 1960s and comprised over 250 lots in and around Robinlee Avenue.[3]

Burwood Heights, 1975

Design and construction

Burwood Heights High was designed by the Public Works Department using a standardised architectural configuration. Similar layouts were later employed at Fairhills High School (1973) and Highvale Secondary College (1977).[3] Construction occurred in multiple stages and was undertaken by various contractors. The first tender was awarded to McDougall-Ireland in late 1969, with work commencing on the Science Block (S Block) in November 1970.

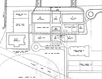
Original site development plan

By April 1974, enrolments had reached 504 students. However, due to a planning oversight, the general classroom and administrative buildings were still incomplete—only the foundations had been laid. As an interim measure, portable classrooms were installed until the permanent structures were finished. The school was officially completed and opened in 1975.[4]

Reopening as Forest Hill College

In 1990, Burwood Heights merged with Nunawading High and Blackburn South High to become Forest Hill Secondary College. The Nunawading and Blackburn South schools were designated as junior campuses and Burwood Heights became the senior campus. This configuration continued until the junior campuses closed in 1997 and it's students were moved to the recently expanded Mahoneys Road (ex-Burwood Heights) campus; where the school remains today.[5]

Upgrades

Up until 2010, Forest Hill College was divided into 2 sub-schools, Junior (Year 7-9), and Senior (Year 10-12), with a courtyard for Year 7–9, a courtyard for Year 10, and another courtyard for VCE Year 11–12. In 2022, Forest Hill College received 10.9-million-dollar funding, from the state Government, to refurbish the Science, Arts, iT, and Food Technology blocks, which also include the canteen and toilet blocks. Construction is estimated to start mid 2024.[6]

References

  1. ^ Windows on Nunawading. Dianne Sydenham. 1990.
  2. ^ Annual Report. Public Works Department. 1960.
  3. ^ a b "Capital Expenditure Works Files: Burwood Heights High School (VPRS 8797/P0001)". Public Works Department via Public Record Office Victoria. 1969–1978.
  4. ^ "Some learn in halls, theatres". The Age. 11 February 1974. p. 5.
  5. ^ "Nunawading High School". Learning From the Past.
  6. ^ "Forest Hill College". www.schoolbuildings.vic.gov.auundefined. 9 January 2024. Retrieved 5 March 2024.