Plaza Hotel

Plaza Hotel
Seen from the corner of 5th Ave. and 58th St.
Former namesWestin Plaza
Alternative namesThe Plaza
EtymologyGrand Army Plaza
General information
TypeLuxury hotel and condominiums
Architectural styleFrench Renaissance-inspired château style
Address768 Fifth Avenue
Manhattan, New York
Coordinates40°45′52″N 73°58′28″W / 40.7645°N 73.9744°W / 40.7645; -73.9744
Construction startedJuly 1, 1905
OpenedOctober 1, 1907
Renovated1919–1921 (annex), 1929, 1943–1945, 1964–1965, 2005–2008
Cost$12.5 million[i]
OwnerKatara Hospitality
ManagementFairmont Hotels and Resorts
Height251.92 ft (76.79 m)
Technical details
Floor count18[1]
Lifts/elevators11
Grounds53,772 sq ft (4,995.6 m2)
Design and construction
Architect(s)Henry Janeway Hardenbergh (original)
Warren and Wetmore (annex)
DeveloperU.S. Realty Company
Main contractorGeorge A. Fuller Company
Other information
Number of rooms282 hotel rooms
181 condominiums
Public transit accessSubway: N, ​R, and ​W trains at Fifth Avenue–59th Street
Website
theplazany.com
Plaza Hotel
New York City Landmark No. 0265, 2174
Location768 Fifth Avenue, Manhattan, New York
Built1907
ArchitectHenry J. Hardenbergh; Thomas Hastings, et al.
Architectural styleLate 19th and 20th Century Revivals (château style)
NRHP reference No.78001878
NYSRHP No.06101.001804
NYCL No.0265, 2174
Significant dates
Added to NRHPNovember 29, 1978[5]
Designated NHLJune 24, 1986[6]
Designated NYSRHPJune 23, 1980[2]
Designated NYCLDecember 9, 1969 (exterior)[3]
July 12, 2005 (interior)[4]

The Plaza Hotel (also known as The Plaza) is a luxury hotel and condominium apartment building in Midtown Manhattan in New York City. It is located on the western side of Grand Army Plaza, after which it is named, just west of Fifth Avenue, and is between 58th Street and Central Park South (a.k.a. 59th Street), at the southeastern corner of Central Park. Its primary address is 768 Fifth Avenue, though the residential entrance is One Central Park South. Since 2018, the hotel has been owned by the Qatari firm Katara Hospitality.

The 18-story, French Renaissance-inspired château style building was designed by Henry Janeway Hardenbergh. The facade is made of marble at the base, with white brick covering the upper stories, and is topped by a mansard roof. The ground floor contains the two primary lobbies, as well as a corridor connecting the large ground-floor restaurant spaces, including the Oak Room, the Oak Bar, the Edwardian Room, the Palm Court, and the Terrace Room. The upper stories contain the ballroom and a variety of residential condominiums, condo-hotel suites, and short-term hotel suites. At its peak, the Plaza Hotel had over 800 rooms. Following a renovation in 2008, the building has 282 hotel rooms and 181 condos.

A hotel of the same name was built from 1883 to 1890. The original hotel was replaced by the current structure from 1905 to 1907; Warren and Wetmore designed an expansion to the Plaza Hotel that was added from 1919 to 1921, and several major renovations were conducted through the rest of the 20th century. The Plaza Operating Company, which erected the current building, operated the hotel until 1943. Subsequently, it was sold to several owners during the remainder of the 20th century, including Conrad Hilton, A.M. Sonnabend, Westin Hotels & Resorts, Donald Trump, and a partnership of City Developments Limited and Al-Waleed bin Talal. The Plaza Hotel was renovated again after El Ad Properties purchased it in 2005, and the hotel was subsequently sold to Sahara India Pariwar in 2012 and then to Katara Hospitality in 2018. The hotel has been managed by Fairmont Hotels and Resorts since 2005.

Since its inception, the Plaza Hotel has become an icon of New York City, with numerous wealthy and famous guests. The restaurant spaces and ballrooms have hosted events such as balls, benefits, weddings, and press conferences. The hotel's design, as well as its location near Central Park, has generally received acclaim. In addition, the Plaza Hotel has appeared in numerous books and films. The New York City Landmarks Preservation Commission designated the hotel's exterior and some of its interior spaces as city landmarks, and the building is also a National Historic Landmark. The hotel is also a member of Historic Hotels of America.

Site

The Plaza Hotel and surrounding buildings (including the Solow Building in the center background) as seen from Central Park in May 2010

The Plaza Hotel is at 768 Fifth Avenue and One Central Park South in the Midtown Manhattan neighborhood of New York City.[7] It faces Central Park South (59th Street) and the Pond and Hallett Nature Sanctuary in Central Park to the north; Grand Army Plaza to the east; and 58th Street to the south. Fifth Avenue itself is across Grand Army Plaza from the hotel.[3][8] The hotel's site covers 53,772 square feet (4,995.6 m2).[7] It measures 285 feet (87 m) along 58th Street and 275 feet (84 m) along Central Park South, with a depth of 200.83 feet (61.21 m) between the two streets.[9] As completed in 1907, it measured 145 feet (44 m) along 58th Street and 250 feet (76 m) along Central Park South, with an "L" running the entire 200-foot depth of the lot along Grand Army Plaza.[10]

The hotel is near the General Motors Building to the east; the Park Lane Hotel to the west; and the Solow Building, Paris Theater, and Bergdorf Goodman Building to the south.[8] The hotel's main entrance faces the Pulitzer Fountain in the southern portion of Grand Army Plaza.[3][11] An entrance to the Fifth Avenue–59th Street station of the New York City Subway's N, ​R, and ​W trains is within the base of the hotel at Central Park South.[12]

Fifth Avenue between 42nd Street and Central Park South was relatively undeveloped throughout the late 19th century, when brownstone rowhouses were built on the avenue.[13] By the early 1900s, that section of Fifth Avenue was becoming commercialized.[14][15] The first decade of the 20th century saw the construction of hotels, stores, and clubs such as the St. Regis New York, the University Club of New York, and the Gotham Hotel.[4] The corner of Fifth Avenue, Central Park South, and 59th Street was developed with the Plaza, Savoy, and New Netherland hotels during the 1890s;[15][16] the Savoy would be replaced in 1927 by the Savoy-Plaza Hotel, which itself would be demolished in 1964.[17] All three hotels contributed to Fifth Avenue's importance as an upscale area.[18]

Architecture

The Plaza Hotel, a French Renaissance-inspired château-style building,[19] is 251.92 ft (76.79 m) tall,[20] with 18 stories.[20][1][a] The hotel's floors are numbered according to European usage, where floor 1, corresponding to the second story, is directly above the ground floor.[23] The building was designed by Henry Janeway Hardenbergh in 1907,[3][9][19] with a later addition, by Warren and Wetmore, being built from 1919 to 1922.[19][20][24] The interiors of the main public spaces were primarily designed by Hardenbergh, Warren and Wetmore, and Schultze & Weaver.[4] The other interior spaces were by Annabelle Selldorf and date largely to a renovation in 2008.[24] Numerous contractors were involved in the construction of the hotel, including the Atlantic Terra Cotta Company and brick contractor Pfotenhauer & Nesbit.[25]

Facade

Entrance on Central Park South

The detail of the facade is concentrated on its two primary elevations, which face north toward Central Park and east toward Fifth Avenue.[3][9][26] The facade's articulation consists of three horizontal sections similar to the components of a column, namely a base, shaft, and crown.[3][9][27] The northern and eastern elevations are also split vertically into three portions, with the center portion being recessed. The northeastern and southeastern corners of the hotel contain rounded corners, which resemble turrets. There are numerous loggias, balustrades, columns, pilasters, balconies, and arches repeated across various parts of the facade.[3][9][26] The 1921 annex contains a design that is largely similar to Hardenbergh's 1907 design.[28]

Base

The first and second stories of the facade, respectively corresponding to the ground floor and floor 1 of the interior,[b] are clad with rusticated blocks of marble. The third story, corresponding to floor 2 of the interior, contains a smooth marble surface.[29] The hotel had two guest entrances in the 1907 design: the main entrance on Central Park South and a private entrance for long-term residents on 58th Street.[30][31] The main entrance, in the center of the Central Park South facade, contains a porch above the three center bays, and large doorways.[31][32] Since the hotel's 2008 renovation, the Central Park South entrance has served as the entrance to the building's condominiums.[33]

The Grand Army Plaza side originally contained a terrace called the Champagne Porch.[9][31][34] There were three minor entrances, including one to the porch.[35][36] The Champagne Porch was replaced by a large central entry in 1921.[9][31][34] The entrance there consists of six Tuscan-style columns, supporting a balcony on the second story, immediately above ground level. The second and third stories at the center of the Grand Army Plaza facade contains paired Corinthian-style pilasters supporting an entablature.[9][31]

Upper stories

The fourth through fifteenth stories, respectively corresponding to interior floors 3 through 14, are clad with white brick and typically contain rectangular windows.[9][37] These stories contain terracotta veneers that harmonize with the marble facade below it and the mansard roof above.[30][35] At the center of the Central Park South facade, the five center bays at the twelfth and thirteenth stories (floors 11 and 12) contain an arcade composed of arches with paired pilasters. On the Grand Army Plaza side, there are horizontal band courses above the thirteenth story.[31] The 58th Street facade is a scaled-down version of the two primary elevations on Central Park South and Grand Army Plaza.[32] A marble balcony runs above the thirteenth story on all sides.[9][31]

The top three floors are within a green Ludowici-tiled mansard roof with copper trim.[26][38][39] The Grand Army Plaza side contains a gable, while the 58th Street and Central Park South sides have three stories of dormer windows. The turrets on the northeastern and southeastern corners are topped by domed roofs,[31][32] which are painted green to match the color of the trees in Central Park.[27] A penthouse occupies the top three stories, which are labeled as floors 19–21.[22]

Mechanical features

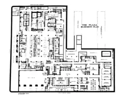
Original plan of the basement; the top of this diagram faces south

The hotel originally contained three sets of pneumatic tube mail systems: one for guest mail, another for guests to order food from the kitchen, and a third for the hotel's various operating departments.[40] The hotel also originally had 10 passenger elevators, 13 dumbwaiters, and three sidewalk elevators.[36][41] These elevators included four at the Central Park South lobby, three at the 58th Street lobby, and two near Central Park South, for long-term residents.[42] The hotel's water storage tanks had a capacity of 75,000 U.S. gallons (280,000 L), and the hotel could filter 1,500,000 U.S. gallons (5,700,000 L) of water from the New York City water supply system each day.[36][41] Water was passed through ten filters before it was pumped to rooms, and water for the kitchens and for drinking fountains passed through additional filters.[43]

The mechanical plant in the subbasement originally contained nine 3,500 horsepower (2,600 kW) boilers; a coal plant with a capacity of 750 short tons (670 long tons; 680 t); fourteen ventilating fans; and an electric generating plant with a capacity of 1,100 kilowatts (1,500 hp). Also in the subbasement was a refrigerating plant that could make 15 short tons (13 long tons; 14 t) of ice every 24 hours, as well as a switchboard made of Tennessee marble, which controlled the hotel's power and lighting.[36][40]

Interior

The hotel has a steel frame superstructure with hollow tile floors, as well as wired-glass enclosures around all stairways and elevators.[30] Originally, five marble staircases led from the ground floor to all of the other floors.[44][45] As constructed, the stories above the ground floor surrounded a large courtyard,[36] which was covered over with office space in a 1940s renovation.[32][46][47] Hardenbergh, in designing the Central Park South foyer, had believed the lobby to be the most important space in the hotel,[48][49] as did Warren and Wetmore when they designed the Fifth Avenue lobby.[50][51] Furthermore, Warren and Wetmore had thought restaurants to be the second most significant space in a hotel, in designing the Terrace Room.[50][52]

There were originally laundry rooms in the basement and on floor 18.[41][53] When the hotel opened in 1907, the basement also contained a grill room, kitchen, various refrigeration rooms, and amenities such as a Victorian-style Turkish bath and a barber shop.[36][54] Originally concealed within the mansard roof were the housekeepers' quarters and maids' dormitories; the eighteenth floor had carpentry, ironing, and tailors' departments.[55] The spaces on floor 18 had become offices by the late 20th century.[56]

Hallways and lobbies

Original plan of the ground floor. The top of this diagram faces south. The Terrace Room, not shown, would be built in the space at the top right of this diagram.

In Hardenbergh's original design, a main corridor connects the primary spaces on the ground floor.[57][58] The corridor, which still exists, connects the lobbies on 58th Street, Grand Army Plaza, and Central Park South.[59] The layout of the ground-floor hallways dates largely from the 1921 expansion by Warren and Wetmore.[32][59] The corridor wraps around the south, east, and north sides of the Palm Court, which is in the center of the ground floor.[30][59] Various smaller corridors lead off the main corridor. All of the halls have floors decorated with mosaics, coffered ceilings made of plaster, and marble columns and pilasters with bronze capitals.[36][59]

The Fifth Avenue lobby

The Central Park South entrance foyer served as the original main lobby, and is in the shape of a "U", with an overhanging mezzanine.[60][61] It contains French marble walls, gilded-bronze column capitals,[27] veined Italian-marble finishes, gold-colored trimmings, a mosaic floor, a plaster coffered ceiling, and columns similar to those in the main corridor. There is a bank of four elevators, with decorative bronze doors, directly in front of the entrance.[62] A crystal chandelier hangs from the ceiling. The entrance doorways contain bronze frames with lunettes.[61] Originally, the branch offices of major brokerage houses adjoined the foyer, including one office in the modern-day Oak Bar.[63][64] In total, there were six brokerage houses scattered across the ground floor.[64]

During Warren and Wetmore's expansion, the Grand Army Plaza lobby, also called the Fifth Avenue lobby, was created as the hotel's new main lobby, which occupied the former Plaza Restaurant's space.[28] The lobby contains a U-shaped mezzanine running above the northern, eastern, and southern walls, with three entrance vestibules below the eastern section of the mezzanine. The Fifth Avenue lobby was decorated with bas-reliefs; and it preserved some of the original decorations from the Plaza Restaurant, including paneled pilasters and a beamed ceiling. Other features, including the mosaic floor and a crystal chandelier, were added by Warren and Wetmore.[65]

The 58th Street entrance has three elevators and adjoins what was formerly a women's reception room.[44][66] West of this lobby is a staircase leading up to a mezzanine-level corridor,[67][68] which has marble floors and ashlar walls and abuts the Terrace Room's balcony to the north and a foyer to the south. The mezzanine-level foyer has marble floors, a painted coffered ceiling supported by two square columns, and a bank of two elevators to the ballroom on floor 1. A marble staircase, with a marble and wooden balustrade, leads from the mezzanine foyer to the ballroom level.[69]

The layout of the upper floors was based on the layout of the ground-floor hallways because all the stairways and elevators were placed in the same position on the upper floors.[70] On floor 2 and all subsequent stories, a centrally located C-shaped corridor runs around the north, east, and south sides of the building and connects every room.[71]

Ground-floor restaurants

Door leading to the Oak Room

The Oak Room, on the western part of the ground floor,[72] was built in 1907 as the bar room. It is west of the Central Park South foyer, separated from the foyer by a corridor.[30][36] Compared to other spaces in the hotel, it retains more details from the original design.[46][73] The Oak Room was designed in a German Renaissance style, originally by L. Alavoine and Company.[60][48] It features oak walls and floors, a coved ceiling, frescoes of Bavarian castles, faux wine casks carved into the woodwork, and a grape-laden brass chandelier.[74][75] The eastern wall contains a gridded glass double door leading to the main hallway,[76] while the northern wall contains two openings to the Oak Bar.[73]

The Oak Bar is just north of the Oak Room, at the northwest corner of the ground floor.[72] It is designed in Tudor Revival style with a plaster ceiling, strapwork, and floral and foliage motifs.[77] The bar room contains walnut woodwork with French furnishings.[32][44] It also has three murals by Everett Shinn, which were added in a 1945 renovation and show the neighborhood as it would have appeared in 1907.[47][78] Prior to the renovation, the Oak Bar served as a brokerage office.[79]

The Edwardian Room, previously known as the Men's Grill or Fifth Avenue Cafe, is at the northeast corner of the ground floor[47][72] and measures 50 by 65 feet (15 m × 20 m). It was originally designed by William Baumgarten & Company and McNulty Brothers, but it has been redecorated multiple times.[80] It contains dark Flemish-oak paneling, 12 feet (3.7 m) high, with finishes and doorway surrounds made of Caen stone.[81] The walls originally had oak wainscoting and an Aubosson tapestry frieze.[27][82] The floor is inlaid with mosaic tiles,[82] and the beamed ceiling is inlaid with mirrors, giving the impression of highly decorated trusses.[47][83] The room is lit by large windows and eight large bronze chandeliers. The room's original color scheme was a relatively toned-down palette of green, dark brown, and gray hues.[42][80] When first built, there was a musicians' balcony overlooking the room.[80] The room also had an entrance at Grand Army Plaza, which was closed with the creation of the Fifth Avenue lobby.[84] The space housed the Green Tulip and Plaza Suite restaurants in the late 20th century;[80] by the 2000s, it was known as One CPS.[85]

A chandelier in one of the Plaza Hotel's restaurants

The Palm Court, previously known as the tea room, is in the center of the ground floor.[27][72] Its design was inspired by the Palm Court at the Carlton Hotel in London.[86][87] The space has Caen stone and Breche Violette walls,[88] mosaic floors, and marble pilasters and columns with bronze capitals.[87][89] Tropical plants, rubber trees, and palms gave the room a garden-like ambiance.[88] The Palm Court initially had a stained glass ceiling, which was removed in a 1940s renovation;[46][90] it was restored in the mid-2000s.[91][92] There were also mirrors on the western wall,[32][36][87] against which are four caryatids carved by Pottier & Stymus, which frame the wall mirrors and represent the seasons.[93] The Palm Court was renovated in 2014; its modern design includes four palm trees as well as a central marble-and-brass bar.[94][95] East of the Palm Court, separated from it by the main corridor, were once the Plaza Restaurant and the Champagne Porch.[30][96] The Palm Court and Plaza Restaurant, which shared nearly identical designs,[89] originally formed a "vast dining hall".[66][48] Removable glass panes along the main corridor abutted both spaces.[44][87]

The Terrace Room, west of the Palm Court,[67] is part of Warren and Wetmore's 1921 design and is named because it contains three terraces.[28][52] The terrace increases in height from east to west and divide the room into three sections, which are separated by balustrades and connected by small staircases.[97] The space contains Renaissance-style motifs on the pilasters, ceilings, and wall arches, as well as three chandeliers and rusticated-marble walls.[98] John B. Smeraldi was commissioned to paint the Terrace Room's ornamentation.[99][98] The room is surrounded by a balcony, with a painted coffer ceiling possibly commissioned by Smeraldi, as well as marble pilasters and floors.[52] A balcony runs slightly above the room on its southern wall.[100] Immediately south of the balcony is the Terrace Room's corridor and foyer.[67][68]

The southeastern corner of the ground floor originally contained the 58th Street Restaurant, which was exclusively for the hotel's long-term residents.[44] In 1934, it was replaced by a nightclub called the Persian Room,[47][101] which had red and Persian-blue upholstery by Joseph Urban, five wall murals by Lillian Gaertner Palmedo, and a 27 ft (8.2 m) bar.[102][103] The room operated until 1978.[104]

Ballroom

Original plan of floor 1 (actually the second story), which is one story above ground level. The top of this diagram faces south. The current ballroom, not shown, would be built in the space at the top right of this diagram.

The original double-height ballroom from Hardenbergh's plan was on the north side of the second story, or floor 1 according to the Plaza Hotel's floor numbering system. The old ballroom, with a capacity of 500 to 600 people, was served by its own elevator and staircase, and contained a movable stage.[30][66] The old ballroom was overlooked on three sides by balconies, and contained a white-and-cream color scheme similar to the current ballroom.[36][54] It was served by its own entrance on 58th Street.[54] By the 1970s, the old ballroom was replaced by offices.[32]

The current ballroom on floor 1 is at the center of that story.[105][68] It was initially designed by Warren and Wetmore, and had a capacity of 800 people for dinners and 1,000 people for dances.[28][52] The room contained a coved ceiling designed by Smeraldi, with crosses, hexagons, and octagons, as well as six chandeliers. The ballroom had a stage on its western wall, within a rectangular opening. A balcony ran across the three other walls and was supported by pilasters with bronze capitals.[106]

In 1929, Warren and Wetmore's ballroom was reconstructed according to a neoclassical design by Schultze & Weaver.[32][106] The room has a white-and-cream color scheme with gold ornamentation, evocative of the original ballroom's design.[52][107] The stage remains on the western wall, but is within a rounded opening. The redesign added audience boxes, with decorative metal railings, on the north and east walls.[108][109] The ballroom contains a coved ceiling with roundels, lunettes, bas reliefs, and two chandeliers.[108] South of the ballroom proper is a corridor running west to east.[105][68] The corridor has a decorative barrel-vaulted paneled ceiling and had a balcony that was removed during the 1929 redesign.[110] On the southernmost section of floor 1 is the ballroom foyer and the stair hall, two formerly separate rooms that were combined in 1965 to form a neoclassical marble-clad space. The stair hall contains the stairs leading from the mezzanine foyer.[111][112]

Condominiums and suites

Suite hallway

The Plaza Hotel's condominiums and suites start on the third story, labeled as floor 2.[71] As originally built, they contained three primary types of suites: those with one bedroom and one bathroom; those with two bedrooms and two bathrooms; and those with a parlor and varying numbers of bedrooms and bathrooms.[66][113] The walls were originally painted in rose, yellow, cream, and gray hues.[114] No wallpaper was used in the rooms, which were instead finished in plain plaster.[64] For decorative effect, the rooms contained wooden wainscoting and furniture,[64][115] while the plaster ceilings supported crystal chandeliers.[115] A guest or resident could request multiple suites, since there were smaller private hallways adjacent to the main hallway on each floor. There were also staff rooms at the corners of the main corridor on each floor.[36][45][113] Dumbwaiters led from the staff rooms to the basement kitchen, allowing guests to order meals and eat them in-suite.[36][116][117] In each room were three buttons, which guests could use to contact that floor's staff, the maid, or the bellhop.[64]

Following its 2008 renovation, the building contains 181 privately owned condominiums, which are marketed as the Plaza Residences or One Central Park South.[24][118][119] The condominiums are on the north and east sides of the building and have a variety of layouts, from studio apartments to three-story penthouse units. The condos' interiors include parquet floors and stone counters, and largely reflect the original design of these rooms.[33] There are also 282 hotel units on the southern side of the building. Of these, 152 condo-hotel units occupy the eleventh through twenty-first stories, respectively labeled as floors 10 through 20. The condo-hotel units serve as residences for investors or staff for up to four months a year, and are used as short-term hotel units for the remaining time. In addition, there are 130 rooms exclusively for short-term stays on the fourth through tenth stories, respectively labeled as floors 3 through 9.[33][92][118] The hotel portion of the building retains a butler on each floor, reminiscent of the hotel's original opulence.[92]

Hardenbergh's design included the State Apartment on the northern side of floor 1.[120][121][122] This apartment was one of the most lavish suites in the entire hotel; it had a drawing room, antechambers, dining rooms, bedrooms and bathrooms, and food storage.[40] Also on floor 1 were private banquet, reception, and card rooms.[36][57][71] The apartment was turned into a private dining area and restored in 1974.[101] Similarly ornate suites were located along the Central Park South side on eleven of the upper floors.[114] The twenty-first story (labeled as floor 20) was created as part of the 2008 renovation, and is part of a four-bedroom penthouse, the largest condominium in the building.[22]

In the early- and mid-20th century, several designers, such as Elsie de Wolfe and Cecil Beaton, were hired to design special suites for the hotel,[46] which has also offered suites or experiences that are themed to notable books or films set there. During 2013, a 900-square-foot (84 m2) suite on the 18th floor of the hotel was furnished with various decorations from the movie The Great Gatsby. The furnished room was based on the novel of the same name by F. Scott Fitzgerald, which had several scenes set at the hotel (see § In media).[123][124] During 2017 and 2018, the Plaza Hotel sold vacation packages with memorabilia, photo opportunities, an in-suite ice cream sundae, and visits to New York City tourist attractions based on the film Home Alone 2: Lost in New York, which is partially set in the hotel.[125] Another room in the hotel was redecorated in 2022 to promote the TV series The Marvelous Mrs. Maisel.[126]

History

The land lots making up the site of the present-day Plaza Hotel were first parceled and sold by the government of New York City in 1853, and acquired by John Anderson from 1870 to 1881.[4] Prior to the Plaza Hotel's development, the site was occupied either by the New York Skating Club,[127][128] or was vacant.[4] When John Anderson died in 1881, his will stipulated that his land would pass to his son, John Charles Anderson.[129] The first development on the site was proposed in 1882, when Ernest Flagg was enlisted to design a 12-story apartment building for a syndicate led by his father, Jared.[130][131][132] However, the Flagg apartment development was not built, likely due to a lack of funding.[4][132]

First hotel

John Duncan Phyfe and James Campbell acquired the site in 1883.[16][133][134] Phyfe and Campbell announced plans for a nine-story apartment building at the site in October of that year,[135] to be designed by Carl Pfeiffer;[136] and construction on the apartment block began that same year.[4][133][137] The builders borrowed over $800,000 from the New York Life Insurance Company, and obtained a second mortgage from John Charles Anderson for a total investment of $2 million.[ii][138] By 1887, after taking three loans from New York Life, Phyfe and Campbell found that they did not have enough funds to complete the apartment block.[139][26] The extent to which the apartment building was completed before the builders' bankruptcy is unclear.[140][d]

In February 1888, brothers Eugene M. and Frank Earle entered into a contract to lease the hotel from Phyfe and Campbell and to furnish it.[138] New York Life concurrently foreclosed on the apartment building[16][142] and that September bought it at public auction for $925,000.[143] Shortly afterward, New York Life decided to remodel the interiors completely,[144] hiring architects McKim, Mead & White to complete the hotel.[4][16] New York Life leased the hotel to Frederick A. Hammond in 1889,[145] and the Hammond brothers became the operators of the hotel for the next fifteen years.[146]

The first Plaza Hotel finally opened on October 1, 1890,[136][147][148] at a cost of $3 million.[iii][136][26][149][150] The original hotel stood eight stories tall and had 400 rooms.[136][26][150] The interiors featured extensive mahogany and carved-wood furnishings; lion motifs, representing the hotel's coat of arms; and a 30-foot-tall (9.1 m) dining room with stained glass windows and gold and white decorations.[148][150][151] Moses King, in his 1893 Handbook of New York City, characterized the hotel as "one of the most attractive public houses in the wide world".[16][128] Despite being described as fashionable,[152] it was not profitable.[139][153] The New York Times reported in 1891 that the hotel netted $72,000 in rental income, against the $1.8 million that New York Life had spent to complete the hotel, including loans to Phyfe and Campbell.[iv][139]

Redeveloped hotel in the early 20th century

The first Plaza Hotel had been relatively remote when it was completed, but by the first decade of the 20th century was part of a rapidly growing commercial district on Fifth Avenue.[154] Furthermore, several upscale hotels in Manhattan were also being rebuilt during that time.[155] In May 1902, a syndicate purchased the Plaza and three adjacent lots on Central Park South for $3 million.[156][157][e] The sale was the largest-ever cash-only purchase for a Manhattan property at the time.[158][159][160] The purchasers were headed by Harry S. Black—who headed the George A. Fuller Company, one of the syndicate's members—as well as German financier Bernhard Beinecke.[161]

Shortly after the purchase, Black and Beinecke formed the Plaza Realty Company to redevelop the hotel.[162] In mid-1905, Black also formed the United States Realty and Construction Company, a trust whose subsidiaries included the Fuller Company and the Plaza Realty Company.[163][164][165] Sources disagree on whether Black and Beinecke approached barbed-wire entrepreneur John Warne Gates for funding,[166] or whether Gates overheard Black and Beinecke discuss their redevelopment plans at a restaurant.[167] In either case, Gates agreed to fund the project on the condition that Frederic Sterry be named the Plaza's managing director.[166][167] To entice Sterry to join the hotel's staff, Black and Beinecke wanted to make a grand hotel.[167]

Construction

The rebuilt Plaza Hotel during the early 20th century

Henry J. Hardenbergh was hired as architect in 1905, initially being commissioned to expand the existing hotel by five stories.[30][168][27] Hardenbergh had already gained some renown for designing other upscale hotels,[26][27][169] such as the Waldorf Astoria Hotel, twenty-five blocks south, during the 1890s.[154][170] Beinecke, Black, and Gates subsequently discovered that the foundation of the existing hotel could not support the additional stories, so they decided to rebuild it completely.[10][171] The George A. Fuller Company was contracted to construct the new hotel.[10] Hardenbergh designed the new hotel building while the owners waited for the existing lease to expire.[172] His design took advantage of the fact that the site faced Grand Army Plaza and could thus be seen from many angles.[26]

The first Plaza Hotel was closed on June 11, 1905,[173][174] and demolition commenced immediately upon the expiration of the lease there.[172][175] The existing hotel's furnishings were auctioned.[10][174][176] The site was cleared within two months of the start of demolition.[149][172] Hardenbergh filed plans for the hotel with the New York City Department of Buildings that September.[177] By the next month, contractors were clearing the old hotel's foundation.[178] The new hotel was to use 10,000 short tons (8,900 long tons; 9,100 t) of steel, and a group of 100 workers and seven derricks erected two stories of steelwork every six days.[179] The Fuller Company decided to hire both union and non-union ironworkers for the hotel's construction, a decision that angered the union workers.[f] Patrolmen were hired to protect the non-union workers,[180] and one patrolmen was killed during a dispute with union workers.[181][182] By October 1906, the facade of the new hotel was under construction.[175]

Hardenbergh and Sterry directed several firms to furnish the interior spaces.[30][48] Sterry recalled that all of the interior features were custom-designed for the hotel,[48][175] such as 1,650 crystal chandeliers and the largest-ever order of gold-rimmed cutlery.[99] Much of the furniture was manufactured by the Pooley Company of Philadelphia; where the Pooley Company could not manufacture the furnishings, the Plaza's developers chartered ships to import material from Europe.[172][183] Sterry himself was dispatched to Europe to purchase these materials.[175] The developers originally anticipated that the hotel would cost $8.5 million to construct, including the furnishings.[v][184][185] Shortly after work started, the developers determined that they would need to raise another $4 million,[vi][27] and the additional expenditures pushed the final construction cost to $12.5 million.[i][172][184] To pay for the construction costs, the developers received a $5 million loan in mid-1906,[186][187] followed by another $4.5 million loan in 1907.[188]

Opening and expansion

The hotel as seen c. 1910

The new 800-room Plaza Hotel was opened on October 1, 1907, twenty-seven months after work had commenced.[36][153][189] The opening was attended by people such as businessman Diamond Jim Brady; actresses Lillian Russell, Billie Burke, Maxine Elliott, and Fritzi Scheff; producers David Belasco and Oscar Hammerstein I; actor John Drew Jr.; and author Mark Twain.[190] Though the opening coincided with the Panic of 1907, the hotel suffered minimal losses.[180][191] The new hotel more than doubled the capacity of the first structure,[192] and it was intended as a largely residential hotel at opening, although the terms for "hotel" and "apartment" were largely synonymous at the time.[193] Estimates held that ninety percent of the units were for long-term residents.[149][190][193] The owners charged short-term guests $2.50 nightly.[vii][149][153] In addition to the apartments, there were 500 bathrooms, ten elevators, a myriad of marble staircases, and two floors of public rooms.[26] Gates, one of the original investors, was among the residents of the new Plaza;[194] when he died in 1911, his funeral was held at the hotel.[195][196]

Most of the public rooms were not originally given formal names.[197] Although Hardenbergh had predicted that gender-segregated spaces were going out of fashion,[49] there was a women's reception room near 58th Street; and the bar room and men's grill (respectively the present Oak and Edwardian Rooms) were exclusively used by men.[44][66][48] In practice, the men's grill acted as a social club where discussing business was socially inappropriate, while the bar was a space to talk business.[198] Sometime between 1912 and the start of Prohibition in the United States in 1920, the brokerage office near the entrance, now the Oak Bar, was turned into an extension of the bar room.[77] The Champagne Porch along Grand Army Plaza was the most exclusive area of the hotel, with meals costing between $50 and $500.[viii][199][200] The basement's grill room hosted ice-skating in the summer, as well as a "dog check room" where residents' dogs could be fed luxuriously. In its first decade, the Plaza employed a staff of over 1,500.[180]

From the start, the Plaza Operating Company was already preparing for the possibility of expansion, and it acquired the lots between 5 and 19 West 58th Street in the first two decades of the 20th century.[201] This land acquisition commenced before the second hotel had even opened.[201][202] By 1915, the Plaza Operating Company had acquired four lots on West 58th Street and one on Central Park South,[203] and it received an exemption from the 1916 Zoning Resolution, which set height restrictions for new buildings on the 58th Street side of the lots.[196] The company filed plans for a 19-story annex along 58th Street in August 1919, to be designed by Warren and Wetmore.[204][205] The final lots, at 15 and 17 West 58th Street, were acquired in 1920 after the plans had been filed.[201][206] The George A. Fuller Company was again hired as the builder.[28] To fund the construction of the annex, the Plaza Operating Company took out mortgage loans worth $2.275 million.[207]

The main entrance was moved to Grand Army Plaza (pictured) as a result of the 1921 expansion by Warren and Wetmore.

The Champagne Porch was only frequented by the extremely wealthy; and in 1921, after the start of Prohibition, Sterry decided to remove the room altogether.[86][200] An enlarged entrance took its place.[28][96][208] The work also included building a new restaurant called the Terrace Room, as well as a ballroom and 350 additional suites.[28][86][200] Warren and Wetmore designed the expanded interior with more subtle contrasts in the decor, compared to Hardenbergh's design.[28][201] The annex opened October 14, 1921, with an event in the ballroom,[209] but was not officially completed until April 1922.[201] With the advent of Prohibition, the bar room was also closed, and the gender segregation rule was relaxed.[210] The space occupied by the present-day Oak Bar became the offices of brokerage EF Hutton.[77] The Plaza had become the city's most valuable hotel by 1923,[196][211] and contributed to the parent U.S. Realty Company being highly profitable and paying increasingly high dividends during the 1920s.[196]

Great Depression

For unknown reasons, Warren and Wetmore's ballroom was reconstructed from June to September 1929, based on neoclassical designs by Schultze & Weaver.[108] Shortly afterward, U.S. Realty's stock price collapsed in the Wall Street Crash of October 1929, which commenced the Great Depression in the United States.[196] Plaza Hotel co-owner Harry Black killed himself the following year,[212] and his partner Bernhard Beinecke died two years later.[213] The rebuilt Plaza's first manager, Fred Sterry, died in 1933.[214] The early 1930s were also financially difficult for the Plaza Hotel, as only half of the suites were occupied by 1932. To reduce operating costs for the hotel's restaurants, the grill room in the basement was converted into a closet, while the Rose Room became an automobile showroom. The furnishings of the hotel fell into disrepair; and during some months management was unable to pay staff.[103]

By the mid-1930s, the old tea room was officially known as the Palm Court, having been frequently referred to as the "Palm Room" during the previous decade.[215] The back room was reopened as the Oak Room restaurant in 1934,[216][217] although it was still referred to as the "back room" by its frequent visitors, which included bankers and brokers.[218] The same year, the Fifth Avenue lobby received display windows and a doorway on the southern wall; and the southeastern corner of the ground floor was remodeled into the Persian Room.[102][219]

Mid-20th century

Hilton operation

Seen from the east on 58th Street

U.S. Realty continued to lose money through the 1930s, and started selling off its properties, including the Plaza Hotel.[103] In October 1943, Atlas Corporation, collaborating with hotelier Conrad Hilton, bought the Plaza Hotel for $7.4 million.[ix][220][221] At the time, the Plaza was 61 percent occupied, and many public areas were closed due to supply shortages caused by World War II.[222][223] Hilton subsequently spent $6 million refurbishing the hotel.[x][118] During mid-1944, the lobby on Fifth Avenue was renovated and its mezzanine was enclosed. The Palm Court skylight, having fallen into disrepair, was removed for the installation of air conditioning equipment.[77][224] A mezzanine was also built above the hotel's former courtyard,[32][46][225] and the room itself became the Court Lounge.[226] The brokerage office at the ground level's northwestern corner was turned into the Oak Bar, which opened in January 1945; and EF Hutton was relegated to the Fifth Avenue lobby's mezzanine.[79] The contractor for the renovations may have been Frederick P. Platt & Brother, which was the Plaza Hotel's primary contractor in the 1940s.[77]

The Plaza Hotel Corporation, the hotel's operator, was merged with the Hilton Hotels Corporation in 1946.[227] The following year, the Plaza Rendez-Vous opened within the old grill room space.[228] By the early 1950s, women were allowed inside the Oak Room and Bar during evenings and in the summer. The Oak Room and Bar was still a men-only space before 3 p.m., while the stock exchanges were open.[229]

Hilton sold the hotel in 1953 to Boston industrialist A.M. "Sonny" Sonnabend for $15 million,[xi] and immediately leased it back for 2.5 years.[230][231] Sonnabend became president of national restaurant chain Childs Company in 1955, and Childs purchased the Plaza that November for $6.2 million in stock.[xii][232] The same year, the ground-floor Plaza Restaurant was renamed the Edwardian Room.[233] James S. Graham Jr. simultaneously renovated the State Apartment,[122] and air conditioning was installed in each guest room.[234] Childs became the Hotel Corporation of America (HCA) in 1956,[235] and Hilton's lease was renewed indefinitely that year.[236] HCA sold the Plaza to Lawrence Wien in November 1958 for $21 million[xiii] and immediately leased it back for 25 years.[237] The transaction included curtailing Hilton's lease to April 1960,[238] at which time HCA assumed the operating lease.[239]

Sonnabend operation

The Plaza Hotel experienced financial difficulties during the early 1960s; but under Sonnabend's management, the Plaza's financial outlook improved by 1964.[240][241] The facade of the hotel was cleaned in late 1960, the first time that the exterior had been fully cleaned since its construction.[242] This was followed, in 1962, by extensive exterior and interior renovations, which resulted in the redecoration of many of the suites and public rooms.[243][244] Four of the hotel's hydraulic elevators were replaced with electric elevators in 1964,[245] including the three elevators in the 58th Street lobby.[246] A second phase of renovations was announced the same year, which entailed enlarging some public rooms and replacing the ground-floor barber shop with a Trader Vic's bar.[112][241] The ballroom's foyer and stair hall were combined during this renovation,[111][112] which was completed by 1965, having cost $9 million.[xiv][244]

Upon Sonny Sonnabend's death in 1964, his son Roger took over the hotel.[104] Further changes to the hotel's ownership occurred the next year, when Sol Goldman and Alexander DiLorenzo's firm, Wellington Associates, bought an option to obtain a half-interest in the underlying land from Hilton.[247] The policy of only allowing men to have lunch at the Oak Room was ended in 1969.[248] In 1971, HCA, by then renamed Sonesta Hotels,[249] announced another round of renovations. This included the redecoration of the Grand Ballroom,[225][250] as well as the replacement of the Edwardian Room with a restaurant called the Green Tulip,[77][197][251] whose pink, lime, and brown design by Sally Dryden[252][253] received a largely negative reception from the public.[23][104][252] The ballroom was also renovated at this time.[108]

The renovations coincided with a decline in Sonesta's and the Plaza's finances, with the hotel recording negative net income in 1971.[104] Sonesta repurchased the Plaza Hotel from Wien in 1972.[254] Shortly afterward, Sonesta looked to sell its interest in the hotel to Harry Helmsley, and Wellington attempted to take over Sonesta by buying its shares.[255][256] Both the sale and the attempted Sonesta takeover were unsuccessful; and Wellington made an offer for Sonesta's share of the hotel in April 1974,[257] which Sonesta refused.[258]

Late 20th century

Westin ownership

In November 1974, Western International Hotels announced its intention to buy the Plaza Hotel from Sonesta for $25 million.[xv][259] The same year, the Edwardian Room was largely restored according to designs by Charles Winslow, and was rebranded as the Plaza Suite.[260][261] Following Western International's acquisition of the Plaza, it renovated the interior spaces, cleaned the exterior, and restored much of the hotel according to the original designs,[46][23] at a total cost of $200 million.[xvi][262] The four hydraulic elevators serving the Central Park South lobby, among the last of their type in the city, were replaced with electric elevators in 1976.[246] Westin also bought the Shinn murals that year for $1 million; they had not been part of the original sale.[263] The Rambusch Company was hired to restore the Oak Room and Bar.[264] The next year, a 204-seat theater called Cinema 3 opened in the basement.[265] The Persian Room was closed in 1978, and a clothing boutique opened in its place.[104] Westin had planned to restore the Palm Court's skylight, but this did not happen.[266]

By the late 1970s, the Plaza Hotel was again making a net profit.[104] Western International changed its name to Westin Hotels in 1981; the hotel was renamed soon after, becoming The Westin Plaza.[267] However, Westin started to lose money in the late 1980s. By 1987, Westin's parent company Allegis Corporation announced its intent to sell the Plaza, generating interest from at least 150 investors.[268] The Plaza, along with the rest of the Westin chain,[269] was transferred to the Aoki Corporation and Robert M. Bass in January 1988.[270] Shortly afterward, Philip Pilevsky and Arthur G. Cohen expressed their intent to buy the Plaza and turn it into a hotel-cooperative.[271]

Trump ownership

The northernmost portion of the eastern facade as seen from Fifth Avenue. The facade is white, and the top stories are within a triangular gable.
The northern portion of the eastern facade

In March 1988, real estate developer Donald Trump bought the Plaza using a $407 million loan from several banks.[272][273] After gaining title to the hotel in July, Trump put his wife Ivana in charge of renovating and managing the hotel.[272][273][266] The Trumps subsequently announced a major renovation program, which entailed restoring the lobby and some of the other interior elements.[262][274] The work also involved gilding many surfaces, replacing carpets, and reupholstering furniture.[275] Trump also decided to shut down the Trader Vic's in the basement in 1989, saying it had become "tacky".[276][277] The hotel made a modest profit for about two years after Trump's purchase, largely from increased occupancy, suite rates, and banquet bookings.[278]

Trump had borrowed extensively to purchase the Plaza, but the hotel's operating income was several million dollars below the breakeven point.[118][279] As a result, the hotel's debt ultimately grew to $600 million.[280] By 1991, Trump was making plans to pay off the hotel's debt by selling off the vast majority of its units as condominiums. Trump estimated that the conversion would net $750 million, almost twice the purchase price.[281][282][283] Trump also considered converting the offices under the mansard roof to penthouse condos, according to designs by Lee Harris Pomeroy.[56][284] The conversion plan failed because it would have been unprofitable, due to a then-recent drop-off in prices in the city's real estate market.[56][280] In March 1992, as a last resort, Trump approached the Plaza's creditors, a group of seventy banks led by Citibank, who agreed to take a 49% stake in the hotel in exchange for forgiveness of $250 million in debt and an interest-rate reduction.[280][285][286] The agreement was submitted as a prepackaged bankruptcy in November 1992[287][288] and approved the next month.[289]

Kwek and Al-Waleed ownership

By 1994, Trump was looking to sell the Plaza before Citibank and other creditors could find a buyer, which would have wiped out his investment. One of his executives identified Hong Kong–based Sun Hung Kai Properties as a potential buyer. The deal fell through after the family of Sun Hung Kai executive Walter Kwok got trapped behind a jammed door while touring the Plaza Hotel.[290] Trump, attempting to maintain appearances, threatened to sue the New York Post that December for reporting that the Sultan of Brunei, Hassanal Bolkiah, had made an offer for the hotel.[290][291] Meanwhile, the creditors had also identified Singaporean developer Kwek Leng Beng as a likely buyer.[292] Kwek's company, Singaporean chain City Developments Limited (CDL), offered to take over the creditors' ownership stake.[293] Saudi prince Al-Waleed bin Talal was also interested in buying the Plaza; and by March 1995, Al-Waleed and CDL had raised $325 million for a controlling stake.[294] Trump unsuccessfully petitioned Kwek to partner with him instead of Al-Waleed.[295]

Trump sold the controlling stake to Kwek and Al-Waleed in April 1995.[296][297] As part of the transaction, the hotel's debt was reduced to $25 million. Kwek and Al-Waleed each bought a 42 percent stake, and Citibank received the other 16 percent stake, a move intended to prevent Trump from intervening in the sale.[290][292][295] The partnership also agreed that, if the mansard penthouses were ever created, some of the profits would be shared with Trump.[290] In 1997, Hong Kong developer Great Eagle Holdings agreed to buy half of Al-Waleed's stake in the Plaza Hotel.[298] DiLorenzo International renovated the ballroom in the mid-1990s,[108] and Adam Tihany refurbished the Edwardian Room prior to 2001.[299] The Plaza was highly profitable in the late 1990s, with operating income of almost $46 million at the end of that decade.[290]

21st century

El Ad ownership

The Plaza Hotel turned 100 years old in October 2007, celebrating with ceremonies and fireworks.

The September 11 attacks in 2001 resulted in a downturn in the New York City tourism industry. Correspondingly, the Plaza's operating profits decreased greatly, leaving Kwek and Al-Waleed unable to refurbish the Plaza as they had previously planned to do.[290] In 2004, they sold the Plaza Hotel for $675 million to El Ad Properties, run by developer Yitzhak Tshuva.[300][301] El Ad wished to add residential and commercial units, but initially faced pushback from hotel unions and preservationists, who opposed El Ad's plan to remove most of the hotel rooms and convert the restaurant spaces to stores.[302][303] In particular, preservationists opposed the conversion of the ballroom into commercial space, even though no changes to the ballroom's architecture were planned, because part of the ballroom occupied a site that was zoned for residential use only.[304] After over sixty hours of discussions between El Ad and the hotel unions,[302] they came to an agreement on April 14, 2005, under which El Ad would convert fewer units to apartments, while preserving more of the hotel suites.[305][306]

The Plaza Hotel temporarily closed for a $450 million renovation on April 30, 2005, two weeks after the agreement had been brokered.[307][308] Fairmont Hotels and Resorts took over operation of the hotel portion during late 2005.[309] The Plaza's furnishings were auctioned on-site and at a Christie's auction in 2006.[225] During the renovation, most of the short-term hotel rooms were converted into residential units,[118] and the Palm Court's stained glass ceiling was restored.[91][92] In addition, floors 18 and 19 were extended toward the interior courtyard, while a small floor 20 was created above the existing roof.[33]

The hotel reopened on March 1, 2008.[92][310] Though the real-estate market in general had slowed down due to the 2008 financial crisis, apartments at the Plaza Hotel were being sold for millions of dollars, disproportionately impacting average apartment prices in Manhattan.[311][312] The hotel unveiled its retail collection, an underground mall featuring luxury brands, in November 2008.[313] Initially, the Plaza sought to attract foreign companies, since many American luxury brands already rented space nearby or sold goods in the neighboring Bergdorf Goodman Building.[314] The Plaza Food Hall opened in the underground mall in 2010, anchored by the Todd English Food Hall in collaboration with chef Todd English.[315][316] By then, El Ad was struggling to find tenants for the mall, and several residents had lost money selling their apartments.[317] The Oak Room restaurant closed in July 2011, two years after the renovation was completed.[318][319]

Sahara India ownership

In mid-2012, Sahara India Pariwar agreed to buy a 75 percent controlling stake for $570 million from El Ad Properties.[118][320] The deal closed that December.[321][322] However, even at the time of the sale, Sahara was experiencing legal issues and was selling off other properties that it owned.[118][323] The development of the nearby Billionaires' Row, an area with several residential skyscrapers marketed for the ultra-wealthy, also negatively affected sales at the Plaza.[324] The Plaza's net income decreased from $3.67 million, in 2012, to negative $1.2 million, in 2014, a figure that declined even further, to negative $10 million, by 2017.[323] Two years after buying the Plaza, Sahara's Subrata Roy announced that he was looking for a buyer for his company's $4 billion majority stake.[325] The Sultan of Brunei made an unsuccessful bid of $680 million.[326][327] In August 2017, after he was unable to secure a buyer, Roy hired a broker to sell the hotel,[328][329] prompting inquiries from about 50 potential buyers.[330]

Simultaneously, former co-owner Al-Waleed, whose Kingdom Holding Company now owned a minor stake in the hotel, partnered with Ashkenazy Acquisition Corporation.[331] Kingdom and Ashkenazy's partnership included a right of first refusal, which allowed the companies to match any third-party offer for the hotel.[328] In May 2018, the Sahara Group announced it had finalized a deal with businessmen Shahal M. Khan and Kamran Hakim to buy a majority share of the hotel for $600 million.[332][333] However, Ashkenazy and Kingdom exercised their right of first refusal,[118] and sued Sahara for trying to sell the hotel to a third party.[334][335] Ashkenazy and Kingdom received an extension to close their purchase of the Plaza,[336] but instead opted to sell their stake to Qatari state-owned hotelier Katara Hospitality, which the companies felt was better positioned to close the sale.[337]

Katara Hospitality ownership

In July 2018, Katara Hospitality acquired full ownership of the Plaza Hotel after buying Sahara's and Askenazy and Kingdom's stakes.[337][338][339] Under Katara's ownership, the condominium units garnered high asking prices: for instance, a four-bedroom unit was listed for $45 million in early 2020. Around the same time, the Plaza's condominium board sought to make repairs to the facade.[340] Because of the COVID-19 pandemic in New York City, and a corresponding downturn in tourism globally, the Plaza's hotel rooms were temporarily closed in March 2020 for an indefinite period, and several hundred employees were laid off.[341][342] When the Plaza Hotel officially reopened in May 2021,[343][344] public spaces such as the Palm Court were rearranged to allow for social distancing.[345] By the mid-2020s, the values of many condominiums had decreased, amid competition from newer luxury developments nearby and complaints about poor-quality material.[346]

Residents and guests

Residents

When the current Plaza Hotel opened in 1907, the first guest to sign its register was Alfred Gwynne Vanderbilt.[43][184] The hotel also housed other wealthy residents, such as George Jay Gould,[43][189] as well as Oliver Harriman Jr. and his wife Grace Carley Harriman.[189] John Gates, the hotel's co-developer, had a 16-room apartment on floor 3,[194] which he rented for $15,000 a year.[xvii][43] Harry Frank Guggenheim lived in the hotel's State Apartment,[101][122][347] while Russian princess Vilma Lwoff-Parlaghy, a prominent portrait painter in the early 20th century, lived in a suite on floor 3 with her lion.[348][193] The hotel's appeal to the wealthy came from the fact that, in the early 20th century, apartments at the Plaza were generally cheaper than in more upscale apartment buildings, and that it faced Central Park, which at the time was well patronized by the wealthy.[349]

Later in the 20th century, the Plaza Hotel served as home to "wealthy widows", such as performer Kay Thompson, who wrote the Eloise children's book series about a young girl who lived at the hotel.[193] During the Great Depression, the "wealthy widows" were considered "a tourist attraction in their own right", with their rents keeping the hotel solvent.[103] The hotel's other residents included playwright Ferenc Molnár.[103][350]

After many units were converted to condominium units in 2008, the Plaza Hotel became even more coveted by the wealthy.[302] However, only about a third of these buyers were full-time residents, with the remainder using their Plaza condominiums as pieds-a-terre.[351] The residents included executives such as New England Patriots owner Robert Kraft,[352] JetBlue CEO David Barger,[353] Bear Stearns CEO James Cayne,[354] Viacom CEO Thomas E. Dooley,[355] Sony Music Entertainment CEO Doug Morris,[356] and Idols franchise producer Simon Fuller.[357] Other notable residents included developer Christian Candy[358] and fashion designer Tommy Hilfiger.[359]

Guests

The guest rooms have also housed notable personalities, such as opera singer Enrico Caruso, as well as novelists F. Scott Fitzgerald and Zelda Fitzgerald.[360] Frank Lloyd Wright often stayed at the Plaza when he was designing the Solomon R. Guggenheim Museum on Fifth Avenue,[24][153][361] maintaining a suite on the second floor between 1954 and 1959.[362][363] Art dealer Joseph Duveen, 1st Baron Duveen, who helped assemble the Frick Collection at the nearby Frick House, lived at the Plaza and held important auctions in the ballroom.[114] In addition, the Beatles stayed at the Plaza Hotel during their first visit to the United States in February 1964.[216][364][365]

Social scene

The Plaza Hotel became associated with celebrities and the wealthy upon its opening, surpassing the original Waldorf Astoria in that respect.[180][366] The Palm Court (then the tea room), with its mostly female guest list, was particularly frequented. Weeks after the hotel's 1907 opening, actress Mrs Patrick Campbell attempted to smoke there, and the resulting controversy boosted the Plaza's stature.[87][367] In January 1908, crowds flocked to see heiress Gladys Vanderbilt and her fiancé, Hungarian count László Széchenyi, have tea, while Theodora Shonts arrived with her fiancé Emmanuel d'Albert de Luynes, the Duke of Chaulnes.[216][368][369] That year, the New York World dubbed the hotel the "Home-for-the-Incurably Opulent".[370][371] By 1909, the Palm Court was consistently exceeding its 350-person capacity.[216][372]

During the 1920s, the basement's grill room was a popular meeting place for young adults born during the Lost Generation.[373] The Oak Room was frequented by actor George M. Cohan, and a commemorative plaque for Cohan was installed in the room in the 1940s after his death.[216][374][375] The Persian Room was popular with the "cafe society", being frequented by socialites and fashion trendsetters.[103] Eddy Duchin and Hildegarde were among the Persian Room's early performers,[376] and it later attracted others, such as Eartha Kitt, Peggy Lee, and Liza Minnelli.[33] By the 1970s, the Persian Room hosted performances by pop singers such as Robert Goulet and Dusty Springfield.[104]

The hotel has also been popular among world leaders, particularly presidents of the United States. The first of these was Theodore Roosevelt, the 26th U.S. president, who moved his Republican Party's events to the Plaza Hotel from the Fifth Avenue Hotel after the closure of the latter in 1908.[377] Theodore Roosevelt's distant cousin, president Franklin D. Roosevelt, had his birthday luncheon in the Palm Court in 1935.[226][378] Other U.S. presidents who frequented the hotel's guestrooms or restaurants have included William Howard Taft, Harry S. Truman, and Richard Nixon,[226][379] as well as onetime owner Donald Trump.[193] For other world leaders, the Plaza Hotel kept a set of national flags, so that an appropriate one could be displayed whenever a foreign head of state visited.[379] Chiang Ching-kuo, at the time the Vice Premier of the Republic of China, was shot by Taiwanese student Peter Huang in an attempted assassination at the hotel on April 24, 1970.[380]

The Plaza Hotel has hosted diplomatic events, as in September 1985, when the finance ministers of several countries signed the Plaza Accord, by which the U.S. dollar was depreciated in relation to other currencies.[381] The Plaza Hotel hosted the NBA draft from 1962 until 1967, as well as in 1978 and 1979.[382]

Receptions

Depiction of a dinner at the Plaza Hotel in 1908

The Terrace Room has frequently been used for press conferences, luncheons, and receptions.[216] For instance, it hosted a 1956 press conference where Laurence Olivier and Marilyn Monroe talked about their upcoming film The Prince and the Showgirl.[383] At a press conference in the Terrace Room in 1968, Richard Burton and Elizabeth Taylor discussed their film Dr. Faustus.[216][384] During the Beatles' 1964 stay at the hotel, visitors were allowed to take pictures with the Beatles in the Terrace Room.[364]

Benefits and weddings

Upon the Grand Ballroom's opening in 1921, it immediately became popular as a venue for debutante balls, including those in honor of Joan Whitney Payson and Cathleen Vanderbilt.[106][385] The rebuilt ballroom hosted social benefits, such as a dinner honoring physicist Marie Curie in 1929,[386] and a meeting of the Girls Service League in 1935 that was attended by U.S. first lady Eleanor Roosevelt.[387] Following World War II, the Grand Ballroom again became a popular venue for debutante balls and benefits,[106][385][388] including a disabled veterans' benefit called the December Ball,[389][390] as well as an event benefiting the Kennedy Child Care Study Center in 1959.[360][391] Writer Truman Capote hosted the "Black and White Ball" there in 1966, in honor of publisher Katharine Graham.[392][393][394] Another popular venue for benefits was the Terrace Court, which hosted events such as the Mid-Winter Ball in 1949.[226][395]

The Grand Ballroom and Terrace Room have also been used for weddings and wedding receptions.[360] For example, the Terrace Room held the reception for figure skater Sonja Henie's 1949 wedding to Winthrop Gardiner Jr.[100][396] Peter Lawford and Patricia Kennedy Lawford's wedding reception was hosted in the ballroom in 1954,[360][397][398] as was David Eisenhower and Julie Nixon Eisenhower's reception in 1968.[360][399] The ballroom also hosted Donald Trump and Marla Maples's 1993 wedding.[400] In 2000, actors Michael Douglas and Catherine Zeta-Jones married at the Plaza.[118][401]

Status as an icon

The Plaza Hotel has become an icon of New York City. Paul Goldberger, writing for The New York Times in 1982, stated that the Plaza had become an important part of the city's architectural history, similar to the Grand Central Terminal and the New York Public Library Main Branch.[46] As another historian said, "Every tourist I've ever met, every [tour] group I've ever had, they all know the Plaza Hotel".[118] The National Trust for Historic Preservation recognized the Plaza Hotel as a Historic Hotel of America.[402]

Critical reception

Upon the present building's opening, the design of the hotel, particularly the interiors, received mostly positive criticism.[58] The New York Times characterized the exterior as "a fitting introduction to the interior", praising the interior for its relative modesty compared to other hotels.[36] However, H. W. Frohne wrote that Hardenbergh had "fail[ed] to make the public rooms entertaining".[58][403] Critics for two architectural magazines also praised the carved woodwork in the Oak Room and the greenery that originally adorned the Palm Court.[30][404][405] For the latter, the Times praised the "gardenlike" effect of the Palm Court, enhanced by its glass ceiling.[36][404] Frank Lloyd Wright wrote that Hardenbergh's exterior design for the Plaza Hotel was an early skyscraper with "a human sense", in contrast to later skyscrapers, which Wright described as "monstrous thing[s]".[360][406]

In the 1967 book The Plaza, Its Life and Times, Eve Brown wrote that "The Plaza has managed always to be in tune with the times, its dignity unruffled, its good taste unimpaired".[31] Ada Louise Huxtable wrote for The New York Times in 1971 that the Plaza Hotel was the city's "most celebrated symbol of cosmopolitan and turn-of-the-century splendor", speaking negatively only of the short-lived Green Tulip restaurant.[251] Judith Gura described the interior spaces as "merg[ing] seamlessly into a harmonious ensemble", despite each space having a distinct character.[60] Curtis Gathje, the Plaza Hotel's official historian and a 25-year veteran of the hotel's staff, stated in 2007, "The Plaza is the epitome of civilized New York."[407]

The site, facing Central Park, was seen as particularly prominent. As early as 1892, Moses King called it "a location of unsurpassed beauty".[150] The rebuilt Plaza was described in a 1907 Architectural Record article as having a site that was "the most unobstructed and charming which could have been selected for a large metropolitan hotel", despite being smaller than that of competitors, such as the Waldorf Astoria.[192] According to Goldberger, the Plaza Hotel's location along both Grand Army Plaza and Central Park made it particularly imposing, with two primary facades.[46] The American Institute of Architects' 2007 survey List of America's Favorite Architecture ranked the Plaza Hotel among the top 150 buildings in the United States.[408][409] The 2010 edition of the AIA Guide to New York City emphasized the park views, characterizing the third- through fifth-floor suites along Central Park South as having "one of the most exciting views of New York".[24]

Landmark designations

New York City designated landmark plaque

The demolition of the nearby Savoy-Plaza in 1964, and its replacement with the General Motors Building, resulted in a preservation movement to save the Plaza Hotel and nearby structures.[241][410] This prompted the New York City Planning Commission to rezone a three-block area around Grand Army Plaza, including the Plaza Hotel, in 1968.[122] The Plaza Hotel's exterior was designated a city landmark by the New York City Landmarks Preservation Commission in 1969.[3][122][411] The hotel was added to the National Register of Historic Places in 1978,[5] and it was made a National Historic Landmark in 1986.[6]

A large part of the main public space in the interior—including the lobbies, ballroom, and restaurant spaces—was made a New York City designated landmark in 2005.[4][60] The interior-landmark designation was partially motivated by opposition to El Ad's original plans to renovate the hotel during 2004.[412][302][413] The restaurant spaces, preserved under the interior-landmark designation, would have been converted into retail space.[302][413] The Edwardian Room was not originally part of the landmark designation,[412] but it was ultimately protected along with the other rooms.[4]

In media

The Plaza Hotel has been used as a setting for several works of literature throughout its history. Most notably, it served as the setting for the Eloise series of books,[240][153][414] the success of which led the hotel's owners during the 1960s to hang the character's portrait in the lobby.[240] The Plaza was also featured in F. Scott Fitzgerald's 1925 novel The Great Gatsby.[118]

The hotel is also one of the most popular filming locations in New York City.[415] Films shot or set in the hotel include North by Northwest (1959),[118][153][416] Barefoot in the Park (1967),[33][360][417] Funny Girl (1968),[33][153][360] Plaza Suite (1971),[33][153][360] The Way We Were (1973),[33][153] and Home Alone 2: Lost in New York (1992).[418] Other films that show the Plaza include Arthur (1981), Crocodile Dundee (1986), Scent of a Woman (1992), Sleepless in Seattle (1993),[33] and It Could Happen to You (1994).[419]

The Plaza has also refused or set unusual conditions for some productions wanting to film there.[420] For example, when the Plaza's managers refused to allow the producers of Big Business (1988) to film there, the film's producers created their own version of the Plaza Hotel on a sound stage.[266][420] When Home Alone 2: Lost in New York was being filmed, director Chris Columbus said that Donald Trump requested a cameo in the film, in exchange for allowing the film crew to shoot scenes in the lobby. The lobby scene involved the star sliding across the floor, so the carpeting was removed, thus revealing some old tilework with the Plaza logo that had been concealed for several decades. The management decided not to replace the carpet.[421][422]

See also

References

Notes

Explanatory notes

  1. ^ Emporis and the Council on Tall Buildings and Urban Habitat and some news media cite the Plaza as being 18 stories tall, as measured to the top of the main roof,[1][21] while the New York City Department of City Planning cites the hotel as being 19 stories tall.[7] However, Architectural Digest characterizes the hotel as having a penthouse on floors 19 through 21.[22]
  2. ^ In this article, the facade is described using standard U.S. floor numbering; i.e. the second story is directly above the ground floor. The interior floors are labeled using European floor numbering, so floor 1 is one story above ground level and corresponds to the second story in the U.S. floor numbering system.[23]
  3. ^ a b c d e f g h i j k l m n Johnston, Louis; Williamson, Samuel H. (2023). "What Was the U.S. GDP Then?". MeasuringWorth. Retrieved November 30, 2023. United States Gross Domestic Product deflator figures follow the MeasuringWorth series.
  4. ^ The 1885 E. Robinson Atlas shows the "Fifth Avenue Plaza Hotel" as occupying part of the site, without indicating its construction status[140] and The New York Times of February 28, 1888, describes the hotel's interior as being partially furnished.[138] Although architectural writer Robert A. M. Stern implies that only the foundations were completed,[133][140] the building had progressed several stories above ground by 1886, when a worker died after falling seven stories from the structure.[141]
  5. ^ The syndicate was composed of the Central Realty, Bond and Trust Company; Hallgarten and Company; and the George A. Fuller Company.[158]
  6. ^ Satow 2019, chapter 1, states that union workers were hired for high-skill jobs, but required higher wages. Non-union workers were hired for low-skill jobs and could be paid lower wages.
  7. ^ a b c 1634–1699: McCusker, J. J. (1997). How Much Is That in Real Money? A Historical Price Index for Use as a Deflator of Money Values in the Economy of the United States: Addenda et Corrigenda (PDF). American Antiquarian Society. 1700–1799: McCusker, J. J. (1992). How Much Is That in Real Money? A Historical Price Index for Use as a Deflator of Money Values in the Economy of the United States (PDF). American Antiquarian Society. 1800–present: Federal Reserve Bank of Minneapolis. "Consumer Price Index (estimate) 1800–". Retrieved February 29, 2024.

Inflation figures

  1. ^ a b Equivalent to $298.51 million in 2023[c]
  2. ^ New York Life's investment is equivalent to $23.86 million, and the total investment is equivalent to $59.64 million in 2023.[c]
  3. ^ Equivalent to $92.86 million in 2023[c]
  4. ^ The rental income is equivalent to $2.21 million, and the total investment is equivalent to $55.16 million in 2023.[c]
  5. ^ Equivalent to $202.99 million in 2023[c]
  6. ^ Equivalent to $95.52 million in 2023[c]
  7. ^ Equivalent to $84.37 in 2024[g]
  8. ^ Equivalent to between $1,687 and $16,873 in 2024[g]
  9. ^ Equivalent to $104.24 million in 2023[c]
  10. ^ Equivalent to $84.52 million in 2023[c]
  11. ^ Equivalent to $136.46 million in 2023[c]
  12. ^ Equivalent to $55.05 million in 2023[c]
  13. ^ Equivalent to $170 million in 2023[c]
  14. ^ Equivalent to $66.41 million in 2023[c]
  15. ^ Equivalent to $120.2 million in 2023[c]
  16. ^ Equivalent to $961.62 million in 2023[c]
  17. ^ Equivalent to $540000 in 2023[g]

Citations

  1. ^ a b c "The Plaza Residences". Council on Tall Buildings and Urban Habitat. Retrieved October 4, 2023.
  2. ^ "Cultural Resource Information System (CRIS)". New York State Office of Parks, Recreation and Historic Preservation. November 7, 2014. Retrieved July 20, 2023.
  3. ^ a b c d e f g h Landmarks Preservation Commission 1969, p. 1.
  4. ^ a b c d e f g h i j Landmarks Preservation Commission 2005, p. 3.
  5. ^ a b "Federal Register: 44 Fed. Reg. 7107 (Feb. 6, 1979)" (PDF). Library of Congress. February 6, 1979. p. 7539 (PDF p. 339). Retrieved March 8, 2020.
  6. ^ a b "List of NHLs by State". National Historic Landmarks (U.S. National Park Service). May 4, 1970. Retrieved November 30, 2020.
  7. ^ a b c "768 5 Avenue, 10019". New York City Department of City Planning. Retrieved September 8, 2020.
  8. ^ a b "NYCityMap". NYC.gov. New York City Department of Information Technology and Telecommunications. Retrieved March 20, 2020.
  9. ^ a b c d e f g h i j National Park Service 1978, p. 2.
  10. ^ a b c d "Fuller Company Will Build the New Plaza Hotel". The Real Estate Record: Real Estate Record and Builders' Guide. Vol. 75, no. 1944. June 17, 1905. p. 1325 – via columbia.edu.
  11. ^ Stern, Gilmartin & Mellins 1987, p. 18.
  12. ^ "MTA Neighborhood Maps: Midtown" (PDF). Metropolitan Transportation Authority. 2018. Retrieved October 1, 2018.
  13. ^ "714 Fifth Avenue" (PDF). New York City Landmarks Preservation Commission. January 29, 1985. p. 5. Retrieved June 9, 2020.
  14. ^ "Mr. Edward Harriman..." (PDF). The Real Estate Record: Real Estate Record and Builders' Guide. Vol. 79, no. 2038. April 6, 1907. p. 296 – via columbia.edu.
  15. ^ a b Jackson 2010, pp. 617–618.
  16. ^ a b c d e Stern, Gilmartin & Massengale 1983, p. 261.
  17. ^ Stern, Gilmartin & Mellins 1987, p. 217.
  18. ^ Stern, Gilmartin & Massengale 1983, p. 254.
  19. ^ a b c New York City Landmarks Preservation Commission; Dolkart, Andrew S.; Postal, Matthew A. (2009). Postal, Matthew A. (ed.). Guide to New York City Landmarks (4th ed.). New York: John Wiley & Sons. pp. 156–157. ISBN 978-0-470-28963-1.
  20. ^ a b c "The Plaza Residences". Emporis. Archived from the original on May 14, 2015. Retrieved November 25, 2020.
  21. ^ See, for example:
  22. ^ a b c Tzeses, Jennifer (March 14, 2016). "The Plaza's Only Triplex Penthouse Is for Sale for $50 Million". Architectural Digest. Retrieved November 1, 2020.
  23. ^ a b c d Friedlander, Paul J. C. (June 15, 1975). "The Plaza: 'That Great Old Lady of New York City Hostelries'". The Washington Post. p. 171. ISSN 0190-8286. ProQuest 135320103.
  24. ^ a b c d e White, Norval; Willensky, Elliot; Leadon, Fran (2010). AIA Guide to New York City (5th ed.). New York: Oxford University Press. p. 338. ISBN 978-0-19538-386-7.
  25. ^ Architecture 1907, p. 187.
  26. ^ a b c d e f g h i Reynolds 1994, p. 230.
  27. ^ a b c d e f g h Tauranac 1985, p. 152.
  28. ^ a b c d e f g h "Hotel Plaza Addition, New York". Architecture and Building. Vol. 54. W.T. Comstock Company. 1922. pp. 16–17.
  29. ^ American Architect 1907, p. 134; Landmarks Preservation Commission 1969, p. 1; National Park Service 1978, p. 2.
  30. ^ a b c d e f g h i j American Architect 1907, p. 134.
  31. ^ a b c d e f g h i Landmarks Preservation Commission 1969, p. 2.
  32. ^ a b c d e f g h i j National Park Service 1978, p. 5.
  33. ^ a b c d e f g h i j Horsley, Carter. "The Plaza, 1 Central Park South". City Realty. Retrieved November 30, 2020.
  34. ^ a b Reynolds 1994, p. 231.
  35. ^ a b Architects' and Builders' Magazine 1907, p. 1.
  36. ^ a b c d e f g h i j k l m n o p "Another Fine Hotel Now on the City's List; Built During the Last Two Years on Site of Old Plaza Hotel Which Was Demolished to Make Place for New Structure". The New York Times. September 29, 1907. ISSN 0362-4331. Retrieved November 25, 2020.
  37. ^ Architects' and Builders' Magazine 1907, p. 1; Landmarks Preservation Commission 1969, p. 2; National Park Service 1978, p. 2.
  38. ^ American Architect 1907, p. 134; Landmarks Preservation Commission 1969, p. 2; National Park Service 1978, p. 2.
  39. ^ "The Plaza Hotel". copper.org. Copper Development Association, Inc.
  40. ^ a b c American Architect 1907, p. 135.
  41. ^ a b c American Architect 1907, p. 136.
  42. ^ a b Architects' and Builders' Magazine 1907, p. 2.
  43. ^ a b c d Tauranac 1985, p. 154.
  44. ^ a b c d e f Architecture 1907, p. 179.
  45. ^ a b Architects' and Builders' Magazine 1907, p. 16.
  46. ^ a b c d e f g h Goldberger, Paul (September 27, 1982). "At 75, Plaza Hotel Seeks to Remain Forever Old; an Appraisal". The New York Times. ISSN 0362-4331. Retrieved November 25, 2020.
  47. ^ a b c d e Reynolds 1994, p. 232.
  48. ^ a b c d e f Landmarks Preservation Commission 2005, p. 10.
  49. ^ a b Hardenbergh, Henry Janeway (1902). "Hotel". In Sturgis, Russell (ed.). A dictionary of architecture and building: biographical, historical, and descriptive. Vol. 2. The Macmillan company; The Macmillan & company. p. 411. OCLC 670096.
  50. ^ a b Hopkins, Walter (November 1923). "Architectural Design for Hotel Interiors" (PDF). Architectural Forum. pp. 205, 208.
  51. ^ Landmarks Preservation Commission 2005, pp. 12–13.
  52. ^ a b c d e Landmarks Preservation Commission 2005, p. 13.
  53. ^ Architects' and Builders' Magazine 1907, p. 25.
  54. ^ a b c Architects' and Builders' Magazine 1907, p. 8.
  55. ^ Hotel Monthly 15, no. 176 (November 1907), cited in Satow 2019, chapter 1.
  56. ^ a b c Satow 2019, chapter 11.
  57. ^ a b Frohne 1907, p. 352.
  58. ^ a b c Landmarks Preservation Commission 2005, p. 9.
  59. ^ a b c d Landmarks Preservation Commission 2005, p. 44 (PDF p. 45).
  60. ^ a b c d Gura 2015, p. 90.
  61. ^ a b Landmarks Preservation Commission 2005, p. 29 (PDF p. 30).
  62. ^ American Architect 1907, pp. 134–135; Architects' and Builders' Magazine 1907, p. 1; Architecture 1907, p. 179; Landmarks Preservation Commission 2005, p. 29 (PDF p. 30).
  63. ^ Architects' and Builders' Magazine 1907, p. 8; Frohne 1907, p. 352; Harris 1981, p. 48.
  64. ^ a b c d e Tauranac 1985, p. 153.
  65. ^ Landmarks Preservation Commission 2005, p. 31 (PDF p. 32).
  66. ^ a b c d e "Newest Great Hotel". The Real Estate Record: Real Estate Record and Builders' Guide. Vol. 80, no. 2061. September 14, 1907. p. 398 – via columbia.edu.
  67. ^ a b c Landmarks Preservation Commission 2005, pp. 21–22 (PDF pp. 22–23).
  68. ^ a b c d National Park Service 1978, p. 11.
  69. ^ Landmarks Preservation Commission 2005, pp. 66–68 (PDF pp. 67–69).
  70. ^ Frohne 1907, p. 362.
  71. ^ a b c Architects' and Builders' Magazine 1907, p. 14.
  72. ^ a b c d Landmarks Preservation Commission 2005, p. 21 (PDF p. 22).
  73. ^ a b Landmarks Preservation Commission 2005, p. 53 (PDF p. 54).
  74. ^ Harris 1981, p. 48; Landmarks Preservation Commission 2005, p. 52 (PDF p. 53).
  75. ^ Tauranac 1985, pp. 152–153.
  76. ^ Landmarks Preservation Commission 2005, p. 52 (PDF p. 53).
  77. ^ a b c d e f Landmarks Preservation Commission 2005, p. 14.
  78. ^ Harris 1981, p. 51; Landmarks Preservation Commission 2005, p. 14; National Park Service 1978, p. 6.
  79. ^ a b Brown 1967, p. 188; Gura 2015, p. 95; Landmarks Preservation Commission 2005, p. 14.
  80. ^ a b c d Landmarks Preservation Commission 2005, p. 25.
  81. ^ Architects' and Builders' Magazine 1907, p. 2 Landmarks Preservation Commission 2005, pp. 25–26; National Park Service 1978, p. 5.
  82. ^ a b Landmarks Preservation Commission 2005, p. 26.
  83. ^ Architects' and Builders' Magazine 1907, p. 2; Frohne 1907, p. 364; Landmarks Preservation Commission 2005, p. 25.
  84. ^ Landmarks Preservation Commission 2005, pp. 25–26.
  85. ^ Confessore, Nicholas (December 30, 2004). "Oak Room at the Plaza Is Going the Way of the Pince-Nez". The New York Times. ISSN 0362-4331. Retrieved November 29, 2020.
  86. ^ a b c Harris 1981, p. 34.
  87. ^ a b c d e Landmarks Preservation Commission 2005, p. 57 (PDF p. 58).
  88. ^ a b Architecture 1907, p. 179; Architects' and Builders' Magazine 1907, p. 4; Landmarks Preservation Commission 2005, p. 57 (PDF p. 58); National Park Service 1978, p. 5; Tauranac 1985, p. 152.
  89. ^ a b Architects' and Builders' Magazine 1907, p. 4.
  90. ^ Landmarks Preservation Commission 2005, p. 57 (PDF p. 58); National Park Service 1978, p. 5; Reynolds 1994, p. 232.
  91. ^ a b Barron, James (December 12, 2005). "A New Ceiling for the Plaza, but It Has Plenty of History". The New York Times. ISSN 0362-4331. Retrieved November 30, 2020.
  92. ^ a b c d e Associated Press (March 3, 2008). "NYC's famed Plaza Hotel reopens". Los Angeles Times. Retrieved November 30, 2020.
  93. ^ Gura 2015, p. 92; Harris 1981, p. 38; Landmarks Preservation Commission 2005, p. 57 (PDF p. 58).
  94. ^ Stein, Joshua David (March 11, 2015). "Cocktail Hours at the Plaza Hotel". The New York Times. ISSN 0362-4331. Retrieved July 7, 2022.
  95. ^ Ferst, Devra (October 29, 2014). "The Spruced Up Palm Court at the Plaza Hotel Has Less Gold But is as Grandiose as Ever". Eater NY. Retrieved July 7, 2022.
  96. ^ a b Landmarks Preservation Commission 2005, pp. 9–10.
  97. ^ Landmarks Preservation Commission 2005, p. 62 (PDF p. 63).
  98. ^ a b Landmarks Preservation Commission 2005, pp. 62–63 (PDF pp. 63–64).
  99. ^ a b Gura 2015, p. 92.
  100. ^ a b Landmarks Preservation Commission 2005, p. 63 (PDF p. 64).
  101. ^ a b c National Park Service 1978, p. 6.
  102. ^ a b Brown 1967, p. 76.
  103. ^ a b c d e f Satow 2019, chapter 6.
  104. ^ a b c d e f g Satow 2019, chapter 10.
  105. ^ a b Landmarks Preservation Commission 2005, p. 21 (PDF p. 23).
  106. ^ a b c d Landmarks Preservation Commission 2005, p. 35 (PDF p. 36).
  107. ^ Brown 1967, p. 73.
  108. ^ a b c d e Landmarks Preservation Commission 2005, p. 36 (PDF p. 37).
  109. ^ "1,000 Hear Mary Garden.; With Ruth Breton She Gives First of "Artistic Mornings" at Plaza". The New York Times. November 8, 1929. ISSN 0362-4331. Retrieved November 27, 2020.
  110. ^ Landmarks Preservation Commission 2005, p. 39 (PDF p. 40).
  111. ^ a b Landmarks Preservation Commission 2005, p. 40 (PDF p. 41).
  112. ^ a b c "Plaza Pressing Expansion Drive; Hotel Will Get Trader Vic's From Savoy-Plaza and Enlarge Banquet Room". The New York Times. November 17, 1964. ISSN 0362-4331. Retrieved November 28, 2020.
  113. ^ a b Frohne 1907, pp. 352–353.
  114. ^ a b c Gathje 2000, p. 81.
  115. ^ a b Gathje 2000, pp. 81–82.
  116. ^ Harris 1981, pp. 22–23.
  117. ^ Architects' and Builders' Magazine 1907, p. 22.
  118. ^ a b c d e f g h i j k l Mashayekhi, Rey (July 18, 2018). "The Plaza Hotel – The Long and Winding Ownership History". Commercial Observer. Retrieved November 25, 2020.
  119. ^ Haughney, Christine (February 17, 2008). "It's Lonely at the Plaza Hotel ..." The New York Times. ISSN 0362-4331. Retrieved November 30, 2020.
  120. ^ Frohne 1907, p. 356.
  121. ^ American Architect 1907, pp. 134–135.
  122. ^ a b c d e Stern, Mellins & Fishman 1995, p. 1123.
  123. ^ Ceallaigh, John O' (April 30, 2013). "The New York Plaza hotel's new Great Gatsby suite". The Daily Telegraph. ISSN 0307-1235. Archived from the original on January 11, 2022. Retrieved June 5, 2020.
  124. ^ Kurutz, Steven (April 24, 2013). "Check In Under 'Jay'". The New York Times. ISSN 0362-4331. Retrieved June 5, 2020.
  125. ^ Matthews, Lyndsey (November 10, 2017). "At the Plaza, You Can Recreate Home Alone 2 This Christmas". Town & Country. Retrieved December 4, 2020.
  126. ^ Ferry, Shannan (February 23, 2022). "You can live like Midge Maisel at the Plaza Hotel". NY1. Retrieved May 28, 2022.
  127. ^ Gathje 2000, pp. 2–3.
  128. ^ a b Harris 1981, p. 6.
  129. ^ "John Anderson's Will Invalid". The New York Times. June 5, 1887. p. 10. ISSN 0362-4331. Retrieved November 24, 2020 – via newspapers.com.
  130. ^ "Out Among the Builders". The Real Estate Record: Real Estate Record and Builders' Guide. Vol. 30, no. 771. December 23, 1882. p. 140 – via columbia.edu.
  131. ^ Stern, Mellins & Fishman 1999, pp. 530–531.
  132. ^ a b Stern, Gilmartin & Massengale 1983, p. 466.
  133. ^ a b c Stern, Mellins & Fishman 1999, pp. 529–530.
  134. ^ "Sale of Fifth Avenue Plaza Lots". The New York Times. October 30, 1883. ISSN 0362-4331. Retrieved November 23, 2020.
  135. ^ "Out Among the Builders". The Real Estate Record: Real Estate Record and Builders' Guide. Vol. 32, no. 813. October 13, 1883. p. 785 – via columbia.edu.
  136. ^ a b c d Gathje 2000, p. 4.
  137. ^ "A Grand Family Hotel.; the Mammoth Structure to Be Erected on the Fifth-Avenue Plaza". The New York Times. November 4, 1883. ISSN 0362-4331. Retrieved November 23, 2020.
  138. ^ a b c "Prospect of a New Hotel.; the New Structure at Central Park May Be Finished". The New York Times. February 28, 1888. ISSN 0362-4331. Retrieved November 23, 2020.
  139. ^ a b c "The Plaza Hotel Case; How Beers Bought a White Elephant for His Company". The New York Times. August 26, 1891. ISSN 0362-4331. Retrieved November 25, 2020.
  140. ^ a b c Landmarks Preservation Commission 2005, p. 17.
  141. ^ "Falling Seven Stories; a Workman Killed at the New Plaza Hotel in Fifty-ninth-street". The New York Times. March 23, 1886. ISSN 0362-4331. Retrieved November 27, 2020.
  142. ^ "The Plaza Hotel Property Sold". New-York Tribune. December 5, 1888. p. 2. Retrieved November 25, 2020 – via newspapers.com.
  143. ^ "Sale of the Plaza Hotel". The New York Times. September 19, 1888. ISSN 0362-4331. Retrieved November 23, 2020.
  144. ^ "Must Be Reconstructed.; the Interior of the Plaza Hotel of Inferior Workmanship". The New York Times. November 24, 1888. ISSN 0362-4331. Retrieved November 23, 2020.
  145. ^ "Plaza Hotel May Close; Said that Mr. Hammond Will Not Get a Renewal of His Lease". The New York Times. April 17, 1899. ISSN 0362-4331. Retrieved November 23, 2020.
  146. ^ Harris 1981, p. 9.
  147. ^ "For Eight Hours of Work.; Letter Carriers' Mass Meeting in Cooper Union Indorses the Bill". The New York Times. September 30, 1890. ISSN 0362-4331. Retrieved November 24, 2020.
  148. ^ a b "A Great Hotel Finished". New-York Tribune. September 30, 1890. p. 7. Retrieved November 27, 2020 – via newspapers.com.
  149. ^ a b c d National Park Service 1978, p. 3.
  150. ^ a b c d King, Moses (1892). King's Handbook of New York City: An Outline History and Description of the American Metropolis. Moses King. p. 208. OCLC 848600041.
  151. ^ Harris 1981, pp. 8–9.
  152. ^ Gathje 2000, p. 6.
  153. ^ a b c d e f g h i Jackson 2010, p. 1003.
  154. ^ a b Landmarks Preservation Commission 2005, p. 6.
  155. ^ "The Hotels of Manhattan". The Real Estate Record: Real Estate Record and Builders' Guide. Vol. 75, no. 1945. June 24, 1905. p. 1367 – via columbia.edu.
  156. ^ "In the Real Estate Field; Plaza Hotel Sale the Feature of Another Lively Week". The New York Times. May 4, 1902. ISSN 0362-4331. Retrieved November 23, 2020.
  157. ^ "The Real Estate Situation". The Real Estate Record: Real Estate Record and Builders' Guide. Vol. 69, no. 1781. May 3, 1902. p. 788 – via columbia.edu.
  158. ^ a b "Pay Cash for Plaza Hotel". New-York Tribune. June 3, 1902. p. 7. Retrieved November 25, 2020 – via newspapers.com.
  159. ^ "Plaza Hotel Property Fetches $3,000,000 Cash". Brooklyn Daily Eagle. June 3, 1902. p. 7. Retrieved November 25, 2020 – via newspapers.com.
  160. ^ "Plaza Hotel Reconstruction; Ten Millions of Dollars Involved in the New Enterprise. The Purchase by the Fuller Company One of the Largest in the Annals of City Real Estate Transactions". The New York Times. June 3, 1902. ISSN 0362-4331. Retrieved November 25, 2020.
  161. ^ Gathje 2000, p. 11.; Harris 1981, p. 11; Landmarks Preservation Commission 2005, p. 6.
  162. ^ "Real Estate Notes". The Real Estate Record: Real Estate Record and Builders' Guide. Vol. 69, no. 1787. June 14, 1902. p. 1097 – via columbia.edu.
  163. ^ Alexiou, Alice Sparberg (2010). The Flatiron: The New York Landmark and the Incomparable City that Arose With It. New York: Thomas Dunne/St. Martin's. p. 114. ISBN 978-0-312-38468-5.
  164. ^ Moody's Manual of Corporation Securities. John Moody & Company. 1903. Retrieved November 27, 2020.
  165. ^ New York Stock Exchange (1929). Listing Statements of the New York Stock Exchange. F. E. Fitch, Incorporated. Retrieved November 27, 2020.
  166. ^ a b Gathje 2000, p. 11.; Harris 1981, p. 15; Landmarks Preservation Commission 2005, p. 6.
  167. ^ a b c Tauranac 1985, p. 150.
  168. ^ "Plans for Plaza Hotel Annex". The Real Estate Record: Real Estate Record and Builders' Guide. Vol. 75, no. 1939. May 13, 1905. p. 1057 – via columbia.edu.
  169. ^ Gathje 2000, p. 13.
  170. ^ Morrison, William Alan (2014). Waldorf Astoria. Images of America. Arcadia Publishing. pp. 11, 26. ISBN 978-1-4671-2128-6.
  171. ^ American Architect 1907, p. 134; Gathje 2000, p. 11.
  172. ^ a b c d e National Park Service 1978, p. 7.
  173. ^ "Old Plaza Hotel to Make Way for New Structure". Buffalo Times. June 10, 1905. p. 9. Retrieved November 27, 2020 – via newspapers.com.
  174. ^ a b "Won't Leave Plaza". New-York Tribune. June 13, 1905. p. 7. Retrieved November 27, 2020 – via newspapers.com.
  175. ^ a b c d Harris 1981, p. 17.
  176. ^ Tauranac 1985, pp. 150–152.
  177. ^ "The Vendome Changes Hands". New-York Tribune. September 21, 1905. p. 12. Retrieved November 27, 2020 – via newspapers.com.
  178. ^ "Framework Still Sound". The New York Times. June 5, 1887. p. 2. ISSN 0362-4331. Retrieved November 27, 2020 – via newspapers.com.
  179. ^ "A Few Facts Regarding the Plaza Hotel". Carpentry and Building. Vol. 29. David Williams Company. May 1, 1907. pp. 159–160.
  180. ^ a b c d Satow 2019, chapter 1.
  181. ^ "Murder in Mid-air by Union Workers; Thirty Iron Erectors Attack Three Watchmen". The New York Times. July 12, 1906. ISSN 0362-4331. Retrieved November 27, 2020.
  182. ^ "Butler Killed by Fall". New-York Tribune. July 27, 1906. p. 1. Retrieved November 27, 2020 – via newspapers.com.
  183. ^ Harris 1981, pp. 17–18.
  184. ^ a b c Landmarks Preservation Commission 2005, p. 5.
  185. ^ "New Plaza Hotel Cost $12,500,000; $4,000,000 More Than Original Estimate, but the Fund Was Easily Raised". The New York Times. September 12, 1907. ISSN 0362-4331. Retrieved July 9, 2020.
  186. ^ "In the Real Estate Field; Loan of $5,000,000 on the New Plaza Hotel – West Side Apartments Sold – Bulk of Trading Confined to Small Properties". The New York Times. June 29, 1906. ISSN 0362-4331. Retrieved November 25, 2020.
  187. ^ "A $5,000,000 Building Loan". New-York Tribune. June 29, 1906. p. 14. Retrieved November 27, 2020 – via newspapers.com.
  188. ^ "A $4,500,000 Mortgage". New-York Tribune. November 8, 1907. p. 14. Retrieved November 27, 2020 – via newspapers.com.
  189. ^ a b c "Dinner at the New Plaza Hotel". New-York Tribune. October 1, 1907. p. 9. Retrieved November 25, 2020 – via newspapers.com.
  190. ^ a b Harris 1981, p. 29.
  191. ^ Brown 1967, p. 35.
  192. ^ a b Frohne 1907, p. 349.
  193. ^ a b c d e Satow, Julie (June 7, 2019). "The Widows of the Plaza Hotel". The New York Times. ISSN 0362-4331. Retrieved November 30, 2020.
  194. ^ a b Architects' and Builders' Magazine 1907, pp. 16, 18.
  195. ^ "Mourners Came From Many States". The Cincinnati Enquirer. August 24, 1911. p. 4. Retrieved March 9, 2015 – via newspapers.com.
  196. ^ a b c d e Satow 2019, chapter 5.
  197. ^ a b Harris 1981, p. 40.
  198. ^ Harris 1981, pp. 47–48.
  199. ^ Harris 1981, p. 33.
  200. ^ a b c "Champagne Porch is No More". Buffalo Times. July 8, 1921. p. 6. Retrieved November 27, 2020 – via newspapers.com.
  201. ^ a b c d e Landmarks Preservation Commission 2005, p. 12.
  202. ^ Frohne 1907, p. 358.
  203. ^ "The Real Estate Field.; Allerton Realty Company Buys East Thirty-ninth Street Plot for Apartment House Site". The New York Times. October 15, 1915. ISSN 0362-4331. Retrieved November 26, 2020.
  204. ^ "Alterations". The Real Estate Record: Real Estate Record and Builders' Guide. Vol. 104, no. 6. August 9, 1919. p. 120 – via columbia.edu.
  205. ^ "$2,500,000 To Be Spent Enlarging Plaza Hotel". New-York Tribune. August 5, 1919. p. 17. Retrieved November 27, 2020 – via newspapers.com.
  206. ^ "Plaza Hotel Buys.; Finally Secures Dugro Property on Fifty-eighth Street". The New York Times. May 28, 1920. ISSN 0362-4331. Retrieved November 27, 2020.
  207. ^ "$2,275,000 in Loans.: $2,000,000 Additional Loan Placed on Plaza Hotel Property". The New York Times. July 14, 1921. ISSN 0362-4331. Retrieved November 27, 2020.
  208. ^ Harris 1981, p. 30.
  209. ^ "Society Aids a Benefit.; Appears in 'The Garden of Youth' in New Ballroom of the Plaza". The New York Times. October 15, 1921. ISSN 0362-4331. Retrieved November 27, 2020.
  210. ^ Gathje 2000, p. 30.; Harris 1981, p. 40; Landmarks Preservation Commission 2005, p. 54 (PDF p. 55).
  211. ^ "City Realty Value Jumps One Billion to $11,275,526,200; Total and $840,629,525 in Personalty Three-fourths of the State's Wealth". The New York Times. October 2, 1923. ISSN 0362-4331. Retrieved November 28, 2020.
  212. ^ "H.s. Black Ends Life by Bullet in Home". The New York Times. July 20, 1930. ISSN 0362-4331. Retrieved November 28, 2020.
  213. ^ "Bernhard Beinecke Dies; a Hotel Man". The New York Times. December 21, 1932. ISSN 0362-4331. Retrieved November 28, 2020.
  214. ^ "To Manage Hotel Plaza.; Henry A. Host Will Fill Position of the Late Frederic Sterry". The New York Times. August 15, 1933. ISSN 0362-4331. Retrieved November 26, 2020.
  215. ^ Brown 1967, p. 79; Harris 1981, p. 38; Landmarks Preservation Commission 2005, p. 15.
  216. ^ a b c d e f g Landmarks Preservation Commission 2005, p. 15.
  217. ^ Gathje 2000, p. 32.
  218. ^ Harris 1981, p. 51.
  219. ^ "Hotel Plaza Plans New Cocktail Room: Corner at 5th Av. And 58th St. Will Be Fitted Up at Cost of $50,000". The New York Times. January 31, 1934. p. 34. ISSN 0362-4331. ProQuest 101079852.
  220. ^ "Atlas in Control of Plaza Hotel; Corporation Buys All Stock of U.S. Realty in Fifth Avenue Property". The New York Times. October 8, 1943. ISSN 0362-4331. Retrieved November 27, 2020.
  221. ^ "Atlas Interests Buy Plaza Hotel In Security Deal: Large 5th Avenue Property Sold by General Realty to Floyd B. Odlum Group". New York Herald Tribune. October 8, 1943. p. 29. ProQuest 1268022005.
  222. ^ Dabney, Thomas Ewing (1950). The Man who Bought the Waldorf: The Life of Conrad N. Hilton. Duell, Sloan and Pearce. p. 173.
  223. ^ Satow 2019, chapter 7.
  224. ^ Gathje 2000, p. 26.
  225. ^ a b c Gura 2015, p. 95.
  226. ^ a b c d Landmarks Preservation Commission 2005, p. 58 (PDF p. 59).
  227. ^ "$60,000,000 Hilton Hotel Concern Formed as Four Companies Merge; Plaza, Stevens, Palmer House, Dayton-Biltmore Combined". The New York Times. June 7, 1946. ISSN 0362-4331. Retrieved November 27, 2020.
  228. ^ Harris 1981, p. 69.
  229. ^ Gathje 2000, p. 142; Harris 1981, pp. 55–56; Landmarks Preservation Commission 2005, p. 15.
  230. ^ "$15,000,000 Paid for Plaza Hotel; Hilton Interests Take Lease Back From the Sonnabend Group of Boston, Mass". The New York Times. October 15, 1953. ISSN 0362-4331. Retrieved November 28, 2020.
  231. ^ Gathje 2000, p. 163.
  232. ^ "Childs Approves Plaza Purchase; Holders Also Agree to Lease 3 Other Hotels, Change Corporate Name". The New York Times. November 18, 1955. ISSN 0362-4331. Retrieved July 9, 2020.
  233. ^ Brown 1967, p. 192; Gathje 2000, p. 30; Landmarks Preservation Commission 2005, p. 15.
  234. ^ Grutzner, Charles (July 8, 1956). "Year of the Air Conditioning; New York Hotels Putting Millions Into Cooling and Renovations". The New York Times. ISSN 0362-4331. Retrieved November 28, 2020.
  235. ^ "Childs Co. Changes Name". The New York Times. February 23, 1956. ISSN 0362-4331. Retrieved November 28, 2020.
  236. ^ "Hotel Corporation of America Buys 2 Hotels for $14,930,000". Daily Boston Globe. March 1, 1956. p. 15. ProQuest 842256840.
  237. ^ "Plaza Hotel Sold for 21 Millions; Wien Pays Record Sum for 5th Ave. Building – Chain to Lease It Back". The New York Times. November 21, 1958. ISSN 0362-4331. Retrieved November 27, 2020.
  238. ^ "Plaza Hotel Title Passes". The New York Times. January 2, 1959. ISSN 0362-4331. Retrieved November 28, 2020.
  239. ^ "Plaza Hotel in Shift; Hotel Corporation to Take Over on Lease Today". The New York Times. April 1, 1960. ISSN 0362-4331. Retrieved November 27, 2020.
  240. ^ a b c Cuff, Daniel F. (December 30, 1979). "The Plaza Hotel: A Moneymaking Fairyland". The New York Times. ISSN 0362-4331. Retrieved November 28, 2020.
  241. ^ a b c Satow 2019, chapter 9.
  242. ^ "Sidewalk Foremen Watch Face-Lifting At the Plaza Hotel". The New York Times. November 25, 1960. ISSN 0362-4331. Retrieved November 28, 2020.
  243. ^ Ennis, Thomas W. (September 9, 1962). "Hotels Spruce Up as Rivalry Rises". The New York Times. ISSN 0362-4331. Retrieved November 28, 2020.
  244. ^ a b "The Grand Hotel: Aging but Still Elegant, Gotham's Storied Plaza Prospers on Nostalgia Edwardian Opulence, Service Enchant Jet-Age Patrons". The Wall Street Journal. August 23, 1965. p. 1. ISSN 0099-9660. ProQuest 132999458.
  245. ^ "Plaza to Install New Elevators". The New York Times. April 6, 1964. ISSN 0362-4331. Retrieved November 28, 2020.
  246. ^ a b McElheny, Victor K. (April 15, 1976). "Plaza's Old Elevators Wheezing to a Halt". The New York Times. ISSN 0362-4331. Retrieved November 28, 2020.
  247. ^ "Wellington to Get Land Under Plaza". The New York Times. August 31, 1965. ISSN 0362-4331. Retrieved November 28, 2020.
  248. ^ Gathje 2000, p. 142; Harris 1981, p. 56; Landmarks Preservation Commission 2005, p. 15.
  249. ^ "Hotel America To Change Name Nov. 10 to Sonesta". Hartford Courant. October 23, 1969. p. 64. ProQuest 550282274.
  250. ^ Edwards, Russell (August 27, 1971). "Plaza Plans 'Original Elegance' in 'World of Tomorrow'". The New York Times. ISSN 0362-4331. Retrieved November 28, 2020.
  251. ^ a b Huxtable, Ada Louise (November 5, 1971). "An Appraisal: An Edwardian Splendor Or Green Tulip Modern?". The New York Times. ISSN 0362-4331. Retrieved November 28, 2020.
  252. ^ a b Landmarks Preservation Commission 2005, pp. 26–27.
  253. ^ Stern, Mellins & Fishman 1995, p. 1124.
  254. ^ Reckert, Clare M. (July 6, 1972). "Sonesta International Takes Title to Plaza Hotel". The New York Times. ISSN 0362-4331. Retrieved November 29, 2020.
  255. ^ Hammer, Alexander R. (May 10, 1973). "Sonesta Shares Target in Deal". The New York Times. ISSN 0362-4331. Retrieved November 29, 2020.
  256. ^ Gallese, Liz Roman (May 10, 1973). "Sonesta Sought by Wellington Associates, But Such a Take-Over May Prove Difficult". The Wall Street Journal. p. 16. ISSN 0099-9660. ProQuest 133819150.
  257. ^ Meyer, Priscilla S. (April 2, 1974). "Sonesta's Plaza Hotel Is Sought by Partners In New York Concern: Wellington Associates, Which Tried Sonesta Take-Over in '73, Is Discussing Purchase". The Wall Street Journal. p. 16. ISSN 0099-9660. ProQuest 133919074.
  258. ^ "Sonesta Won't Sell The Plaza, New York, To Wellington Group". The Wall Street Journal. May 3, 1974. p. 16. ISSN 0099-9660. ProQuest 133971802.
  259. ^ "Western Hotels Co. Buying the Plaza For $25-Million". The New York Times. November 13, 1974. ISSN 0362-4331. Retrieved July 9, 2020.
  260. ^ Harris 1981, p. 43; Landmarks Preservation Commission 2005, p. 27; Stern, Mellins & Fishman 1995, p. 1125.
  261. ^ Goldberger, Paul (February 12, 1974). "Plaza Turning Back Clock to '1907-New' Look". The New York Times. ISSN 0362-4331. Retrieved November 28, 2020.
  262. ^ a b Moss, Michael (March 28, 1988). "5-Star Facelift; Trump to make over city's Plaza Hotel". Newsday. p. 02. ProQuest 277975654.
  263. ^ "Plaza Buys Murals By Everett Shinn From Old Owners". The New York Times. May 18, 1976. ISSN 0362-4331. Retrieved November 29, 2020.
  264. ^ Stern, Mellins & Fishman 1995, p. 1125.
  265. ^ Goldberger, Paul (March 24, 1977). "Design Notebook: Inglorious Urban Entries See a Movie In Style Order Carved Out of Openness". The New York Times. ISSN 0362-4331. Retrieved November 29, 2020.
  266. ^ a b c "Playing The Palm Court As a Trump Card Says Ivana Trump, 'We appreciate the old beauty". Newsday. July 20, 1988. p. 04. ProQuest 277975714.
  267. ^ "In Hotels View, It's Better to Give". The New York Times. August 3, 1985. ISSN 0362-4331. Retrieved July 9, 2020.
  268. ^ Meyers, William H. (September 25, 1988). "Stalking the Plaza". The New York Times. ISSN 0362-4331. Retrieved November 28, 2020.
  269. ^ "Allegis to Sell Its Westin Unit For $1.35 Billion – Accord With Bass Group, Aoki Moves Firm Closer To Restructuring Goal". The Wall Street Journal. October 28, 1987. p. 1. ISSN 0099-9660. ProQuest 398140080.
  270. ^ "Trump Has Agreed To Purchase Plaza Hotel, Sources Say: Trump Agrees to Buy Famous Plaza Hotel From Bass and Aoki". The Wall Street Journal. March 18, 1988. p. 2. ISSN 0099-9660. ProQuest 135320103.
  271. ^ Foderaro, Lisa W. (February 27, 1988). "Plaza Hotel May Be Sold for Co-ops". The New York Times. ISSN 0362-4331. Retrieved November 28, 2020.
  272. ^ a b Stout, David; Gilpin, Kenneth N. (April 12, 1995). "Trump Is Selling Plaza Hotel To Saudi and Asian Investors". The New York Times. Retrieved May 3, 2022.
  273. ^ a b Segal, David (January 16, 2016). "What Donald Trump's Plaza Deal Reveals About His White House Bid". The New York Times. Retrieved May 3, 2022.
  274. ^ Dunlap, David W. (December 20, 1988). "Trumps Plan to Revamp The Plaza in a Big Way". The New York Times. ISSN 0362-4331. Retrieved December 1, 2020.
  275. ^ Revson, James A. (September 21, 1989). "Donald and Ivana Glitz the Plaza". Newsday. p. 04. ProQuest 1943384125.
  276. ^ "Trump to Close a 'Tacky' Trader Vic's". The New York Times. January 25, 1989. ISSN 0362-4331. Retrieved March 3, 2021.
  277. ^ Morabito, Greg (October 30, 2013). "Remembering Trader Vic's, New York's Favorite Tiki Bar". Eater NY. Retrieved March 3, 2021.
  278. ^ Agovino, Theresa (January 29, 1990). "Profit in Sight for a Rejuvenated Plaza". Crain's New York Business. Vol. 6, no. 5. p. 1. ProQuest 219134786.
  279. ^ Norris, Floyd (June 5, 1990). "A Haze of Debt Clouds The Plaza Hotel's Gleam". The New York Times. ISSN 0362-4331. Retrieved July 9, 2020.
  280. ^ a b c "Trump Relinquishing Half of Plaza Hotel Sale of Suites as Condos Fails to Raise Cash". Sun Sentinel. Reuters. March 19, 1992. p. 2D. ProQuest 388941901.
  281. ^ "Trump planning to convert posh Plaza Hotel into condos". Star-Gazette. Elmira, NY. April 10, 1991. p. 16. Retrieved November 29, 2020 – via newspapers.com.
  282. ^ Hylton, Richard D. (April 9, 1991). "Trump Aims to Turn Most of Plaza Hotel Into Condominiums". The New York Times. ISSN 0362-4331. Retrieved November 29, 2020.
  283. ^ Hylton, Richard D. (April 9, 1991). "Trump expected to sell rooms in Plaza Hotel". Los Angeles Daily News – via NewsBank.
  284. ^ Lueck, Thomas J. (June 3, 1990). "Reaching for the Sky to Add a Room". The New York Times. ISSN 0362-4331. Retrieved November 30, 2020.
  285. ^ "Trump yields 49% of Plaza Hotel in N.Y." The Star-Ledger. Newark, NJ. March 19, 1992 – via NewsBank.
  286. ^ Lowenstein, Roger (March 19, 1992). "Trump Agrees to Give Lenders 49% of Plaza Hotel". The Wall Street Journal. p. A5. ISSN 0099-9660. ProQuest 135320103.
  287. ^ "Prepackaged Bankruptcy Is Filed for Plaza Hotel". The Wall Street Journal. November 4, 1992. p. A6. ISSN 0099-9660. ProQuest 398326488.
  288. ^ "Company News; Trump Revises Plaza Loan". The New York Times. November 4, 1992. ISSN 0362-4331. Retrieved November 30, 2020.
  289. ^ "Company News; Trump's Plaza Hotel Bankruptcy Plan Approved". The New York Times. Reuters. December 12, 1992. ISSN 0362-4331. Retrieved July 9, 2020.
  290. ^ a b c d e f Satow 2019, chapter 12.
  291. ^ Henry, David (December 22, 1994). "Trump Says He'll Sue Post for $500M". Newsday. p. A53. ProQuest 278840199.
  292. ^ a b Satow, Julie (May 23, 2019). "That Time Trump Sold the Plaza Hotel at an $83 Million Loss". Bloomberg. Retrieved November 25, 2020.
  293. ^ Barron, James (January 11, 1995). "Company News; Singapore Chain Seeks Plaza Hotel Stake". The New York Times. ISSN 0362-4331. Retrieved November 29, 2020.
  294. ^ Sutton, Larry; Michelini, Alex (March 16, 1995). "Looking to Trump two on Plaza deal". New York Daily News. p. 1272. Retrieved November 26, 2020 – via newspapers.com.
  295. ^ a b Pacelle, Mitchell (February 19, 1997). "Asian Investors Buy Up Hotels in U.S., Europe, But Move Cautiously". The Wall Street Journal. p. A1. ISSN 0099-9660. ProQuest 1619948359.
  296. ^ "Trump selling controlling interest in Plaza Hotel". Journal News. April 12, 1995. p. 44. Retrieved November 29, 2020 – via newspapers.com.
  297. ^ Gilpin, David; Stout, Kenneth N. (April 12, 1995). "Trump Is Selling Plaza Hotel To Saudi and Asian Investors". The New York Times. ISSN 0362-4331. Retrieved July 9, 2020.
  298. ^ "Metro Business; New Plaza Hotel Owner". The New York Times. September 30, 1997. ISSN 0362-4331. Retrieved November 29, 2020.
  299. ^ Landmarks Preservation Commission 2005, p. 27.
  300. ^ Barron, James (August 14, 2004). "Eloise Gets a New Landlord: Plaza Sells for $675 Million". The New York Times. ISSN 0362-4331. Retrieved July 9, 2020.
  301. ^ "Elad Properties: Plaza Hotel Will Change Hands In a $675 Million Transaction". The Wall Street Journal. August 16, 2004. p. A6. ISSN 0099-9660. ProQuest 398907334.
  302. ^ a b c d e Satow 2019, chapter 13.
  303. ^ "Council fights hotels-to-condos trend". Newsday. Archived from the original on March 31, 2021. Retrieved November 30, 2020.
  304. ^ Barron, James (April 3, 2005). "Bar Mitzvahs, Weddings, and, Now, a Zoning War". The New York Times. ISSN 0362-4331. Retrieved December 28, 2023.
  305. ^ "Mayor Announces Deal to Ease Job Cuts in Plaza Hotel Overhaul". The New York Times. April 14, 2005. ISSN 0362-4331. Retrieved November 30, 2020.
  306. ^ Steele, Lockhart (April 14, 2005). "Breaking: Plaza Hotel 'Saved,' Sort Of". Curbed NY. Retrieved November 30, 2020.
  307. ^ "The Plaza Says It'll Be History After April 30". The New York Times. March 5, 2005. ISSN 0362-4331. Retrieved July 9, 2020.
  308. ^ Danto, Ginger (April 25, 2005). "Suite Deal for the Plaza". Brandweek. p. 30.
  309. ^ "Fairmont to manage New York City's Plaza Hotel". CBC. November 22, 2005. Retrieved November 23, 2020.
  310. ^ Baltic, Scott (March 3, 2008). "New York's Plaza Hotel Reopens After $400M Renovation". Commercial Property News. Retrieved July 9, 2020.
  311. ^ Haughney, Christine (January 3, 2008). "Apartment Prices in Manhattan Defy National Real Estate Slide". The New York Times. ISSN 0362-4331. Retrieved June 1, 2022.
  312. ^ Norton, Leslie P. (June 16, 2008). "Signs of Softness Appear in Manhattan Real Estate". Barron's. Vol. 88, no. 24. pp. 23–24. ProQuest 201074583.
  313. ^ Dworin, Caroline H. (December 6, 2008). "For a Luxury Mall, an Ill-Timed Debut". The New York Times. ISSN 0362-4331. Retrieved November 30, 2020.
  314. ^ Edelson, Sharon (April 14, 2008). "The Plaza's New Platform: Niche Brands". WWD. Retrieved July 7, 2024.
  315. ^ Collins, Glenn (November 22, 2011). "Plaza Food Hall Is Growing". The New York Times. ISSN 0362-4331. Retrieved July 9, 2020.
  316. ^ "Q & A with Miki Naftali". The Real Deal New York. May 24, 2011. Retrieved November 30, 2020.
  317. ^ Haughney, Christine (January 18, 2010). "Dream for the Plaza Fades in a Not-So-Gilded Age". The New York Times. ISSN 0362-4331. Retrieved June 1, 2022.
  318. ^ Buckley, Cara (May 6, 2011). "Oak Room Is Set to Close After Rent Fight With Plaza Hotel". The New York Times. ISSN 0362-4331. Retrieved November 30, 2020.
  319. ^ Kludt, Amanda (May 6, 2011). "The Plaza Hotel's Oak Room is Set to Close in July". Eater NY. Retrieved November 30, 2020.
  320. ^ Thirani, Neha (August 1, 2012). "Indian Conglomerate Buys New York's Plaza Hotel". India Ink. Retrieved December 1, 2020.
  321. ^ "Plaza Hotel in New York sold to Indian billionaire". BBC News. November 28, 2012. Retrieved December 1, 2020.
  322. ^ "Sahara group takes over New York's iconic Plaza hotel". NDTV.com. Retrieved December 1, 2020.
  323. ^ a b Satow 2019, chapter 15.
  324. ^ Clarke, Katherine (August 25, 2015). "The Plaza's Plight: Owners of apartments at the storied Central Park Hotel aren't making the profits they'd hoped for". New York Daily News. Retrieved November 30, 2020.
  325. ^ Bagli, Charles V. (August 22, 2014). "Legal Woes of Owners Help Put the Plaza Back in Play". The New York Times. ISSN 0362-4331. Retrieved July 9, 2020.
  326. ^ Karmin, Craig; Chaturvedi, Saurabh; Wei, Lingling (August 16, 2014). "Brunei Bids for New York's Plaza Hotel". The Wall Street Journal. ISSN 0099-9660. Retrieved December 1, 2020.
  327. ^ "Sultan of Brunei Reportedly Aims to Acquire Plaza Hotel in New York". Yahoo! Sports. August 16, 2014. Retrieved September 6, 2022.
  328. ^ a b Karmin, Craig (August 22, 2017). "Famed Plaza Hotel Is On the Block". The Wall Street Journal. ISSN 0099-9660. Retrieved November 27, 2020.
  329. ^ Bagli, Charles V. (August 23, 2017). "The Plaza Is for Sale, but a Part-Owner Has Other Ideas". The New York Times. ISSN 0362-4331. Retrieved November 27, 2020.
  330. ^ Karmin, Craig (September 19, 2017). "Dozens of Investors Show Interest in Plaza Hotel". The Wall Street Journal. ISSN 0099-9660. Retrieved November 27, 2020.
  331. ^ Warerkar, Tanay (May 25, 2017). "Beleaguered Plaza Hotel purchase may soon be finalized". Curbed NY. Retrieved November 25, 2020.
  332. ^ Satow, Julie (May 4, 2018). "Deal Is Reached to Sell the Plaza Hotel". The New York Times. ISSN 0362-4331. Retrieved November 25, 2020.
  333. ^ Warerkar, Tanay (May 3, 2018). "Legendary Plaza Hotel will sell for $600M to Saudi prince". Curbed NY. Retrieved November 25, 2020.
  334. ^ Hall, Miriam (May 21, 2018). "Minority Owners Of The Plaza Hotel Sue Majority Owner For Trying To Sell To Third Party". Bisnow. Retrieved November 25, 2020.
  335. ^ Tan, Gillian (May 18, 2018). "New York Plaza Hotel Buyers Ashkenazy, Alwaleed Sue Owner". Bloomberg. Retrieved November 25, 2020.
  336. ^ Parker, Will; Maurer, Mark (June 26, 2018). "Ashkenazy, Kingdom get extension to close on Plaza deal: sources". The Real Deal New York. Retrieved November 25, 2020.
  337. ^ a b Parker, Will; Maurer, Mark (July 3, 2018). "Qatari group closes on $600M purchase of Plaza Hotel". The Real Deal New York. Retrieved December 1, 2020.
  338. ^ Karmin, Craig; Morris, Keiko (July 3, 2018). "New York's Iconic Plaza Hotel Sold to Qatar Fund for $600 Million". The Wall Street Journal. ISSN 0099-9660. Retrieved December 1, 2020.
  339. ^ Tan, Gillian (July 5, 2018). "NYC's Historic Plaza Hotel Sold to Qatari State-Owned Company". Bloomberg. Retrieved November 25, 2020.
  340. ^ "Balcony Repair Ignites Civil War at Plaza Hotel Over Union Labor". The Real Deal New York. August 28, 2020. Retrieved November 30, 2020.
  341. ^ Engquist, Erik (March 27, 2020). "Plaza Hotel in New York City Closes, Lays Off 251". The Real Deal New York. Retrieved November 26, 2020.
  342. ^ Yeginsu, Ceylan; Norman, Derek M. (October 9, 2020). "'If No Tourists Come, I Have No Business': New York's Tourism Crisis". The New York Times. ISSN 0362-4331. Retrieved November 26, 2020.
  343. ^ "Road To Reopening: New York's Iconic Plaza Hotel Reopens After Year-Long COVID Closure". CBS New York. May 20, 2021. Retrieved August 15, 2021.
  344. ^ "Iconic Plaza Hotel Reopens as New York City Looks to Welcome More Tourists". NBC New York. May 20, 2021. Retrieved August 15, 2021.
  345. ^ "COVID NYC Update: Plaza Hotel offers tour ahead of Thursday reopening". ABC7 New York. May 19, 2021. Retrieved August 15, 2021.
  346. ^ Velsey, Kim (November 27, 2023). "Plaza Regret". Curbed. Retrieved July 5, 2024.
  347. ^ Gathje 2000, p. 82.
  348. ^ Gathje 2000, p. 89.
  349. ^ Frohne 1907, p. 354.
  350. ^ Gathje 2000, p. 90.
  351. ^ Satow, Julie (October 24, 2014). "Pied-à-Neighborhood". The New York Times. ISSN 0362-4331. Retrieved December 1, 2020.
  352. ^ Abelson, Max (October 17, 2007). "Another Putin Pal—Patriots Owner Robert Kraft—Buys in The Plaza". Observer. Retrieved August 3, 2022.
  353. ^ Barbanel, Josh (September 30, 2007). "Taking Refuge at the Plaza". The New York Times. ISSN 0362-4331. Retrieved November 30, 2020.
  354. ^ "Bear Stearns's Cayne Lists in New York". The Wall Street Journal. August 15, 2013. ISSN 0099-9660. Retrieved November 30, 2020.
  355. ^ "When Is $7.8 M. Not A Lot? When It's A Condo at The Plaza". Observer. November 20, 2007. Retrieved November 30, 2020.
  356. ^ Stone, Madeline. "The CEO Of Sony Music Is Selling His Ritzy New York City Condo For $11.5 Million". Business Insider. Retrieved November 30, 2020.
  357. ^ Alberts, Hana R. (October 16, 2014). "Huxley Building Action; American Idol Creator Sells Plaza Pads". Curbed NY. Retrieved November 30, 2020.
  358. ^ Barbanel, Josh (March 6, 2012). "Candy Gets Taste of the Plaza". The Wall Street Journal. ISSN 0099-9660. Retrieved November 30, 2020.
  359. ^ Marino, Vivian (November 1, 2019). "Tommy Hilfiger's Duplex Sells After 11 Years on the Market". The New York Times. ISSN 0362-4331. Retrieved November 30, 2020.
  360. ^ a b c d e f g h i Landmarks Preservation Commission 2005, p. 16.
  361. ^ Gathje 2000, pp. 82, 84; Stern, Mellins & Fishman 1995, p. 1124.
  362. ^ Cohen, Michelle (February 13, 2025). "Frank Lloyd Wright's palatial former Plaza suite asks $18.9M". 6sqft. Retrieved February 14, 2025.
  363. ^ "When Frank Lloyd Wright Lived at the Plaza Hotel". Metropolis. August 22, 2021. Retrieved February 14, 2025.
  364. ^ a b Gathje 2000, pp. 124–125; Harris 1981, pp. 94, 99.
  365. ^ "4,000 Hail Beatles on Arrival in Miami". The New York Times. February 14, 1964. ISSN 0362-4331. Retrieved November 28, 2020.
  366. ^ Groth, Paul (1994). Living Downtown: The History of Residential Hotels in the United States. University of California Press. p. 42. ISBN 978-0-520-06876-6.
  367. ^ Harris 1981, pp. 66, 68.
  368. ^ "Crush to See Brides Who'll Wear Titles; Throng of Women at the Plaza Jams Corridors, Men's Cafe, and Grill. Duke and Count on View With Miss Theodora Shonts and Miss Gladys Vanderbilt, Whom They Are Soon to Wed". The New York Times. January 12, 1908. ISSN 0362-4331. Retrieved November 27, 2020.
  369. ^ Brown 1967, p. 174.
  370. ^ National Park Service 1978, p. 8.
  371. ^ Harris 1981, p. 66.
  372. ^ "Society's Latest Fad--Tearooms". The New York Times. April 25, 1909. ISSN 0362-4331. Retrieved November 28, 2020.
  373. ^ Harris 1981, p. 67.
  374. ^ Gathje 2000, p. 78.
  375. ^ "Plaque to Honor Cohan, Harris". The New York Times. March 11, 1943. ISSN 0362-4331. Retrieved November 28, 2020.
  376. ^ Harris 1981, p. 104.
  377. ^ Harris 1981, pp. 109–110.
  378. ^ "Gay Pageant Here Honors President". The New York Times. January 31, 1935. ISSN 0362-4331. Retrieved November 30, 2020.
  379. ^ a b Harris 1981, p. 110.
  380. ^ Lelyveld, Joseph (April 25, 1970). "Entrance to the Plaza Hotel Is the Scene of Assassination Attempt". The New York Times. ISSN 0362-4331. Retrieved July 20, 2022.
  381. ^ Funabashi, Yōichi (1989). Managing the Dollar: From the Plaza to the Louvre. Books / Institute for international economics. Institute for International Economics. pp. 261–271. ISBN 978-0-88132-097-8.
  382. ^ Bradley, Robert D. (2013). The Basketball Draft Fact Book: A History of Professional Basketball's College Drafts. Scarecrow Press. pp. 82, 87, 91, 96, 101, 112, 252, 260. ISBN 978-0-8108-9069-5.
  383. ^ Gathje 2000, p. 111.
  384. ^ Gathje 2000, p. 137.
  385. ^ a b Brown 1967, pp. 223–229.
  386. ^ "Honor Mme. Curie Tonight; Cancer Society Members Hosts at Only Public Event for Her Here". The New York Times. October 31, 1929. ISSN 0362-4331. Retrieved November 29, 2020.
  387. ^ "President's Wife to Speak on Youth; Mrs. Roosevelt Will Address Girls Service League Here at Nov. 14 Meeting". The New York Times. November 3, 1935. ISSN 0362-4331. Retrieved November 29, 2020.
  388. ^ Gardner, Evelyn (November 20, 1955). "Forthcoming Debutante Balls Here Recall Cotillions of Earlier Days". The New York Times. ISSN 0362-4331. Retrieved November 29, 2020.
  389. ^ Landmarks Preservation Commission 2005, pp. 15–16.
  390. ^ Gathje 2000, p. 84.
  391. ^ Gathje 2000, p. 120.
  392. ^ Curtis, Charlotte (November 29, 1966). "Capote's Black and White Ball: 'The Most Exquisite of Spectator Sports'". The New York Times. ISSN 0362-4331. Retrieved November 28, 2020.
  393. ^ Gathje 2000, pp. 130–133.
  394. ^ Jackson 2010, p. 202.
  395. ^ "Auction of Thoroughbred Filly on Thursday To Be Feature of Annual Midwinter Ball". The New York Times. January 16, 1949. ISSN 0362-4331. Retrieved November 30, 2020.
  396. ^ "Sonja Henie, Famous Skater, Weds Winthrop Gardiner Jr., Executive". The New York Times. September 16, 1949. ISSN 0362-4331. Retrieved November 30, 2020.
  397. ^ Gathje 2000, pp. 108–109.
  398. ^ "Patricia Kennedy Married to Actor". The New York Times. April 25, 1954. ISSN 0362-4331. Retrieved November 28, 2020.
  399. ^ Gathje 2000, p. 140.
  400. ^ Capuzzo, Mike (December 21, 1993). "Marla finally becomes Mrs. Trump". Philadelphia Inquirer. Archived from the original on January 19, 2016. Retrieved March 26, 2016.
  401. ^ Mackelden, Amy (March 29, 2020). "Catherine Zeta-Jones & Michael Douglas' Wedding Photos 20 Years Later". Harper's BAZAAR. Retrieved November 25, 2020.
  402. ^ "The Plaza". Historic Hotels. Historic Hotels of America; National Trust for Historic Preservation. Retrieved November 16, 2018.
  403. ^ Frohne 1907, p. 364.
  404. ^ a b Landmarks Preservation Commission 2005, p. 11.
  405. ^ Architects' and Builders' Magazine 1907, pp. 4, 8.
  406. ^ Frazier, George (January 1956). "Elegance Entrenched". Esquire. p. 135.
  407. ^ The New York Times (September 26, 2007). "Answers About the Plaza Hotel". City Room. Retrieved November 28, 2020.
  408. ^ "List of America's Favorite Architecture". FavoriteArchitecture.org. AIA. 2007. Archived from the original on May 10, 2011. Retrieved September 27, 2010.
  409. ^ Kugel, Seth (May 27, 2007). "The List: 33 Architectural Favorites in New York". The New York Times. ISSN 0362-4331. Archived from the original on January 20, 2023. Retrieved January 20, 2023.
  410. ^ Stern, Mellins & Fishman 1995, pp. 1122–1123.
  411. ^ "2 City Sites Designated Landmarks". The New York Times. December 18, 1969. ISSN 0362-4331. Retrieved November 28, 2020.
  412. ^ a b Anderson, Lisa (March 14, 2005). "Check it out: New York's fabled Plaza is going condo". Chicago Tribune. p. 1.1. ProQuest 420437782.
  413. ^ a b Ulam, Alex (March 2005). "What does the future hold for the Plaza Hotel?" (PDF). Architectural Record. Vol. 193, no. 3. p. 36.
  414. ^ Jackson 2010, p. 411.
  415. ^ "Plaza Hotel in Films". On the Set of New York. Retrieved November 30, 2020.
  416. ^ Gathje 2000, p. 116.
  417. ^ Shelley, Peter (2015). Neil Simon on Screen: Adaptations and Original Scripts for Film and Television. McFarland, Incorporated, Publishers. p. 23. ISBN 978-0-7864-7198-0. Retrieved November 29, 2020.
  418. ^ Alberts, Hana R. (November 7, 2017). "The definitive guide to 'Home Alone 2' filming locations in NYC". Curbed NY. Retrieved July 22, 2020.
  419. ^ Robinson, Katie (March 3, 2021). "The Plaza Hotel 110th Anniversary – Movies Filmed at The Plaza". Town & Country. Retrieved October 8, 2022.
  420. ^ a b Spears, Steve (June 10, 2018). "30 years ago, 'Big Business' was really small potatoes". Tampa Bay Times. Retrieved November 30, 2020.
  421. ^ Niemietz, Brian (November 18, 2020). "Trump 'bullied' his way into 'Home Alone 2: Lost in New York': director". New York Daily News. Retrieved December 4, 2020.
  422. ^ Beresford, Jack (November 18, 2020). "Home Alone 2 director says Donald Trump 'bullied his way' into movie". The Irish Post. Retrieved December 4, 2020.

Sources