In this article, the author talks about 3 phase and the magic of a missing neutral wire. And there's the following paragraph:
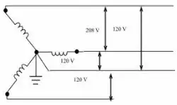
In a 3-phase system the voltage between any two phases is 3 times higher than the voltage of an individual phase by a factor of 1.73 (square root of 3 to be exact). If your X-N (and Y-N and Z-N) voltage is 120V (common in the US), the X-Y (and Y-Z and Z-X) voltages (a.k.a. “cross-phase” voltages) will be 120V * 1.73 = 208V.
When he says the X-N voltage is 120V, with N being the reference voltage, is the reference voltage 0V or does it have some value?
From the diagram (in the link,) I realise that the neutral wire is grounded, but is this the same as earth grounding? Doesn't the neutral wire go back to the transformer so as to provide a closed circuit?

