3

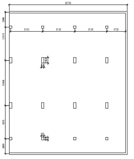
I have a building that is 7 story height (which 5 stories are basement floors which means they are underground) My water level is at 1.5 m from the surface. the stories have typical rectangular shape of 30 m x 36.2 m with a grid of columns as shown in the picture below. When modeling the raft foundation that is subjected to gravity loads and water pressure (opposite to gravity loads) and since the raft is at a level of 19.5 m from the ground surface it is subjected to a lot of uplift the overall gravity load is of 108858 KN as for the uplift is (19.5-1.5)*10*30*36.2 = 195480 KN which is greater than the gravity loads so their will be an uplift of the building.

How to solve this problem ? I mean how many solutions that are available today for this problem and what is the most economical one ?

enter image description here

enter image description here

enter image description here

Wasabi
  • 13,167
  • 8
  • 39
  • 62
J.Daou
  • 513
  • 13
  • 27

3 Answers3

4

There are a few possible solutions.

You can use pile foundations, where the piles dig deep into the soil and resist the uplift. They'll work entirely in tension, instead of the usual compressive load, so point bearing capacity is non-existent, only consider lateral capacity. Depending on the soil type (and remembering it is saturated), this may or may not be viable, especially if you need to handle seismic loads. Regardless, it is probably not the best idea.

The usual solution is mass. Lots and lots of mass. Your walls and bottom basement slab are under massive loads, so just go crazy and make them monstrously thick. This will lower your steel reinforcement and reduce cracking. And, if you put in enough (including a safety factor), your structure will weigh more than the water it'll displace (weight > uplift).

Wasabi
  • 13,167
  • 8
  • 39
  • 62
2

In such a case following multiple solutions are suggested.

  1. Tension piles are the best solution. Raft often creates uplift pressure if the water table is high or may vary season to season.
  2. Now the cheapest one: Place pipes at various and multiple positions in the raft vertically to release the pressure. These pipes shall be interconnected above the raft in an appropriate slope towards a harvesting tank. Water will rise in the pipe which can be dropped in the tank from where can be pumped out for gardening. No pressure shall be created under the raft. This pipe network can be embedded under the floor of the basement.

One more important point: place a thick layer of stones and stone dust underneath the raft. It will reduce the capillary action in the soil and water will tend to flow horizontally instead of vertically. Allow a horizontal passage of water below the raft. It can be easily done by placing half perforated pipes network below the raft in the layer of stones a d guide the water outside the building area.

Wasabi
  • 13,167
  • 8
  • 39
  • 62
Abid Qazi
  • 21
  • 1
1

I believe you could have also considered rock bolts/anchors. I don't know how thick your raft foundation was going to be, but sometimes making the slab thick enough to resist uplift forces can cause problems:

  • It may be unnecessarily thick, and as such quite expensive to oversize
  • It may not be possible to dig deeper to pour a thicker foundation

Rock bolts also will most likely be concealed, so it won't affect architectural elements. They can be pricey however.

Local economics/prices/availability may have a big effect on the viability of any of these solutions.