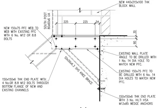
Consider the following steelwork drawing:
The location of the 6 no. M12 bolts are indicated with a circle and cross.
However, it is not clear whether the shank of the bolts should point into or out of the page. Without explicitly drawing the nut and bolt, what is a shorthand way to indicate the direction of the bolt shank and location of the nut?
EDIT: I've done some digging and it seems there is no short hand for this. It is dealt with via an explicit drawing of the washer/nut and the use of drawing notes. I'll keep the question open in the hopes someone knows a shorthand way to notate which side the nut is to go on

