1

*** modified design with new gas spring approach -I couldn't find shoulder bushing with large enough shoulder diameter so I will buy nylon tubing and cut them to lenght (Item 11) and add abs washer I can make (Item 13 and 14)

  • I agree about the load on the hinge, but I figure that since it will not be used frenquently I will just need to be carefull. -I removed the spring fot the hinge system, it was based from an exemple I have seen but you comment made me think it was maybe to keep it open. Someone suggested gasspring.ca, I made a simulation with 2 springs directly on the trap door

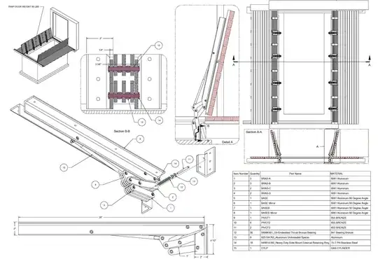
I have been working on a hinge for a trap door. This is what I can up with, using 1/4" flat aluminum bar that I can easily machine on a cheap cnc router. but now I have a few quesyions:

1-What is best for pivots ? Bronze or Stainless steel ? (outdoor application)

2-How to calculate the spring force ?

Comments and advices are welcome !

Thanks 22vv GASSPRING1 GASSPRING2 GASSPRING3 Animation Detail 3D

1 Answers1

0

Nice drawing! Haven't done machine design in recent years, but I'd def think about the following

Re: pins

  • making the pins from stainless steel (item 11), and assuming (item 9,10) work similarly, also those
  • replacing the flat bushings (item 12) with shoulder-bushings, and enlarging the holes in the aluminum plates as necessary.
  • The material pair of the bushing and pin should then be checked. E.g. austenitic stainless vs bronze is prone to galling (or maybe you don't care, it's not for infinite life), but some other types of hard stainless can be fine. Or just go with steel-on-steel, or stainless-on-stainless. Smaller cabinetry-door machines that remind me of what you have seem to use stainless-on-stainless or nickel-plated-steel on nickel-plated-steel without issue AFAIK, but I've never looked that closely. Also consider what would happen with lubricant, in case it squeak when dry.

There's going to be a lot of load on those pins, and doors can become unintentional levers (eg imagine fully open and someone bumps into it in the direction that would open it even more) so worth looking into that too.

Re: spring/cylinder force - I wonder if you could use a work-energy approach? I.e. model in two positions with the door a few degrees apart, and diff spring extension vs diff door angle... and do that specifically near the position where you want it to provide resistance (against sideways force when up?). But then it's not going to be frictionless, so the result would be a minimum and might be far off anyway. This sounds hard. Would plan for possibility of having to go back and buy a different spring etc. Actually seen this totally fail when someone was designing a stowed bed.

If you want the spring/cylinder to help lift rather than to help stop from falling, not sure you'd get much help in the lower position, in fact it might even resist you lifting it in the lower position. But I'm not confident of that. It may be a matter of redesigning (item 4) to add an extra lobe so that the spring force is applied in a different angular position (relative to item 4 itself) vs the pivot near where that happens.

PS - this looks like a "6 bar car hood mechanism", that might help find more resources

Pete W
  • 1,561
  • 1
  • 6
  • 11