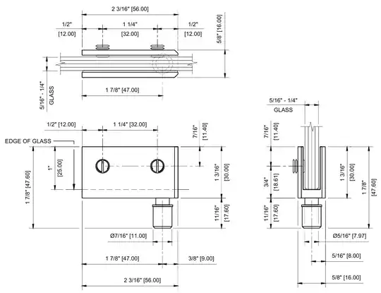
I have a pane of 6mm toughened glass that is 2 m high, 0.7 m wide and weighs 21 kg. I've been trying to find some pivot hinges that can handle this glass and also pivot at the corner of the glass. All the pivot hinges I've found so far that pivot at the corner of the glass cannot handle a piece of glass this big. The attached image is an example of the biggest corner pivot hinge I could find. But it will only handle a 12.7 kg, 508 mm wide piece of glass. Pivot hinges for bigger pieces of glass don't appear to have been designed to pivot at the corner of the glass, like a frameless glass shower door for example.
The pivot hinge is positioned some distance from the corner, resulting in the corner of the glass pivoting into the internal space as the door is opened. I cannot have this happen, so I need it to pivot at the corner. I was planning on just fabricating my own pivot hinge out of 3mm steel. It is essentially just a U shape piece of steel with a small rod welded on. The rod just sits in a hole in the frame of the door. One in the bottom corner and one in the top corner. I'm just not sure how big of a hinge I would need to make to handle glass this big and heavy and have no idea how to calculate that from an engineering point of view. Does anyone have any ideas?
